Objektbeschreibung
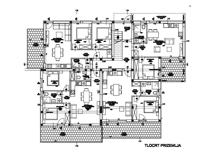
Die Wohnung A2, die sich im Erdgeschoss eines modernen Neubaus im Ort Vodice in unmittelbarer Nähe von Šibenik befindet, steht zum Verkauf. Die Gesamtfläche der Wohnung beträgt 96,76 m² und sie besteht aus einem Eingang, einem Wohn- und Küchenbereich mit Esszimmer, zwei Schlafzimmern, einem WC, einem Badezimmer sowie einem Ausgang
Mehr lesen
Objekt ID: 2350719
Preis: € 358.000
Nutzfläche: 0 m2
Gesamtfläche: 0 m2
Ziimmer insgesamt: 3
Schlafzimmer: 3
Badezimmer: 1
Nutzungsart: Wohnen
Provisionspflichtig: ja
WC: 1





















