Objektbeschreibung
EIN ORT MIT GESCHICHTE. EIN RAUM FÜR RUHE, RÜCKZUG UND INSPIRATION.
————————-
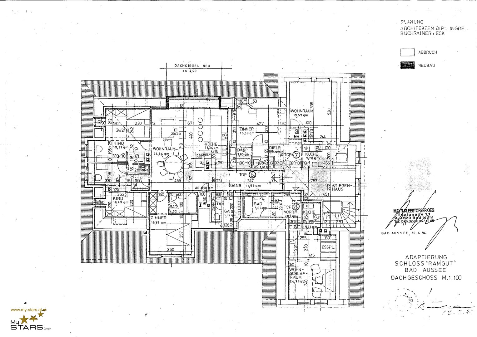
📍 Lage: Ramgutstraße 18, Obertressen, Bad Aussee
📐 Wohnfläche: ca. 45 m²
🛏️ Raumaufteilung: großzügiger Wohn-/Schlafbereich, Küche, Bad
🌄 Ausrichtung: Ostseitiger Blick auf Natur und Gebirge
🛠️ Zustand: hochwertig generalsaniert
📜 Besonderheiten: historische Substanz
Mehr lesen
Objekt ID: 2353148
Preis: € 215.000
Nutzfläche: 45 m2
Gesamtfläche: 0 m2
Ziimmer insgesamt: 1
Schlafzimmer: 1
Badezimmer: 1
Miete/m2 €: 4777.78
Nutzungsart: Anlage
Provisionspflichtig: ja
Provision: 3% des Kaufpreises zzgl. 20% USt.
HWB: 89,50 kWh/(m²*a)
HWB Klasse: D
FGEE: 2.42
E-Ausweis Gültig Bis:: 06.07.2031
Energieausweis Art: Bedarf
Beziehbar: sofort
WC: 1
Einbauküche
Altbau
Parkett
Bad mit Fenster
Fußbodenheizung
Kamin
Massiv
Massivbauweise
vollerschlossen
Elektro
Ähnliche Objekte
Neuer Preis! – Loftwohnung in historis...
€ 250.000
1
Schlafzimmer
1
Badezimmer
45 m2
Größe
November 12, 2025







