Objektbeschreibung
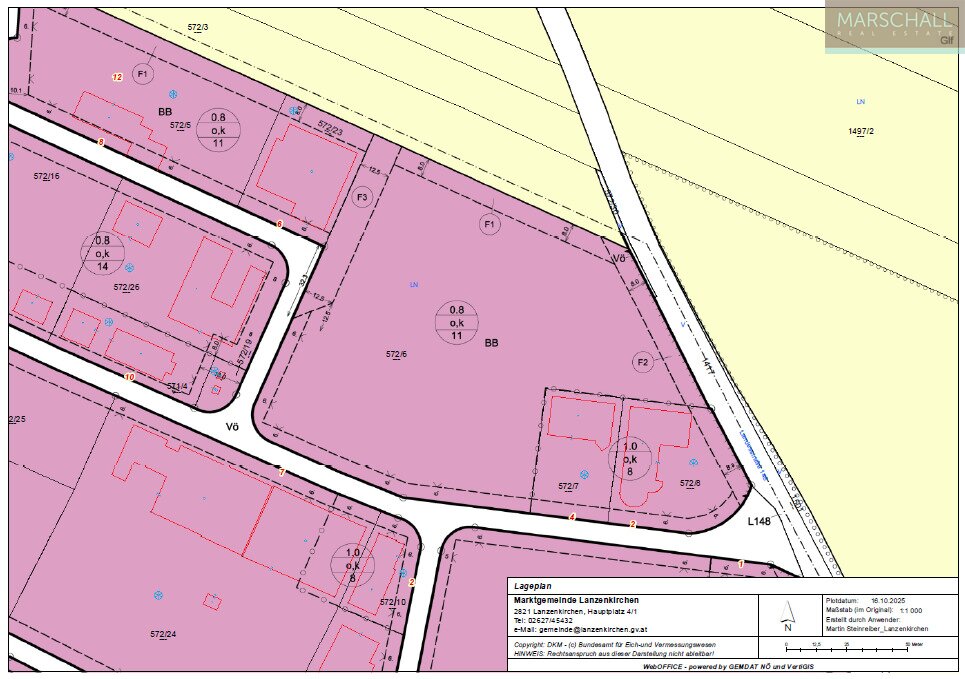
Das ebene, nicht befestigte und sehr gut bebaubare Grundstück mit ca. 10.000 m² befindet sich im Gewerbepark von Lanzenkirchen direkt an der L148 und eignet sich hervorragend als Betriebsstandort.
Die Zufahrt erfolgt über die Wiener Neustädter Straße und im Gewerbepark über breite, befestigte Straßen.
Lanzenkirchen ist eine wachsende Marktgemeinde [https://de.wikipedia.org/wiki/Marktgemeinde] mit 4431
Mehr lesen
Objekt ID: 2354657
Preis: € 1.395.000
Nutzfläche: 0 m2
Gesamtfläche: 10.000 m2
Ziimmer insgesamt: 0
Schlafzimmer: 0
Badezimmer: 0
Miete/m2 €: 139.5
Nutzungsart: Anlage
Provisionspflichtig: ja
Provision: 3% des Kaufpreises zzgl. 20% USt.
Beziehbar: nach Vereinbarung
unerschlossen






