Objektbeschreibung
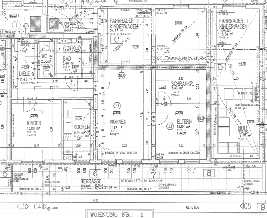
Diese frisch renovierte 3-Zimmer-Wohnung mit rund 81 m² Wohnfläche überzeugt durch eine moderne Raumaufteilung und einen 30 m² großen Balkon. Zur Wohnung gehört ein Tiefgaragenstellplatz, der seperat um 29.000€ erworben wird.
Das Schlafzimmer mit angrenzendem Ankleideraum bietet viel Platz und Struktur, während das zweite Zimmer flexibel als Kinder-, Gäste- oder Arbeitszimmer genutzt werden kann.
Ein modernes Badezimmer mit Waschmaschinenanschluss,
Mehr lesen
Objekt ID: 2365351
Preis: € 298.000 pro Monat
Nutzfläche: 81 m2
Gesamtfläche: 0 m2
Ziimmer insgesamt: 3
Schlafzimmer: 3
Badezimmer: 1
Nutzungsart: Wohnen
Provision: 3 % zzgl. 20% MwSt. vom Gesamtkaufpreis
HWB: 57,40 kWh/(m²*a)
HWB Klasse: C
FGEE: 1.36
E-Ausweis Gültig Bis:: 21.09.2030
Energieausweis Art: Bedarf
Anzahl Balkone: 1
Balkon/Terrassen - Fläche: 30
Beziehbar: ab sofort
WC: 1
Balkon
Neubau
Einbauküche
WG-geeignet
Parkett
Dusche
Kabel/Sat-TV
vollerschlossen
Fernheizung
Fernwärme
Tiefgarage
Keller
Ähnliche Objekte
Modernisierter Altbau mit Wohn-Ess-Küche, 3 ...
€ 479.900 pro Monat
4
Schlafzimmer
1
Badezimmer
99 m2
Größe
März 7, 2026
Modernisierter Altbau für Büro oder Ordinati...
€ 9.21 pro Monat
4
Schlafzimmer
1
Badezimmer
99 m2
Größe
März 7, 2026















