Erweiterte Suche
Suchagent aktivieren
Exklusive Anzeigen

Flexibel einsetzbare Gewerbefläche im ersten Obergeschoss

€ 2.000.000,00

,

zu Favoriten hinzufügen
teilen
Suchergebnisse

Objektbeschreibung

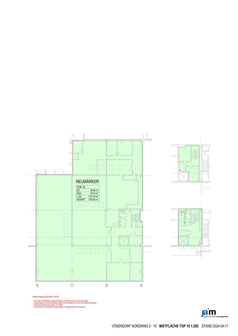
Fläche im ersten Obergeschoss direkt neben der SCS Vösendorf! Zum Verkauf steht ein flexibel nutzbares Objekt mit ca. 1.476m² Nutzfläche direkt neben der SCS Vösendorf. Ein Teil der Fläche wurde bereits als Büro verwendet und der andere Teil ist hoch genug um Hochregale zu installieren. Die Raumhöhe beträgt bis zu
Mehr lesen

Bezirk:
Bundesland:
PLZ: 2334
Land: Österreich
Objekt ID: 2374747
Preis: € 2.000.000
Nutzfläche: 0 m2
Gesamtfläche: 1.476 m2
Ziimmer insgesamt: 0
Schlafzimmer: 0
Badezimmer: 0
Miete/m2 €: 1355.01
Nutzungsart: Gewerbe
Provisionspflichtig: ja
Provision: 3% des Kaufpreises zzgl. 20% USt.
Beziehbar: ab sofort
Etage: 1. Etage
Gas
Zentralheizung
Lastenaufzug
Estrich

Ähnliche Objekte

finallyHOMEreal GmbH
Bernhard Friedrich

Kontaktaufnahme









    • Preisinformation
      Objektpreis2.000.000,00 €

    Vergleichen