Objektbeschreibung
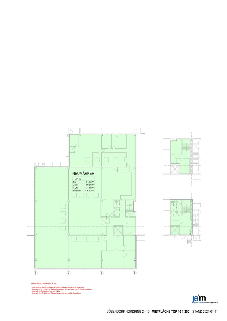
Fläche im ersten Obergeschoss direkt neben der SCS Vösendorf! Zum Verkauf steht ein flexibel nutzbares Objekt mit ca. 1.476m² Nutzfläche direkt neben der SCS Vösendorf. Ein Teil der Fläche wurde bereits als Büro verwendet und der andere Teil ist hoch genug um Hochregale zu installieren. Ein Lastenaufzug (5.000kg) führt direkt
Mehr lesen
Objekt ID: 2374747
Preis: € 2.000.000
Nutzfläche: 0 m2
Gesamtfläche: 1.476 m2
Ziimmer insgesamt: 0
Schlafzimmer: 0
Badezimmer: 0
Miete/m2 €: 1355.01
Nutzungsart: Gewerbe
Provisionspflichtig: ja
Provision: 3% des Kaufpreises zzgl. 20% USt.
Beziehbar: ab sofort
Etage: 1. Etage
Zentralheizung
Lastenaufzug
Estrich




