Objektbeschreibung
Für eine noch größere Auswahl an Immobilien besuchen Sie www.akkadia.at [http://www.akkadia.at].
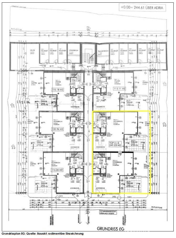
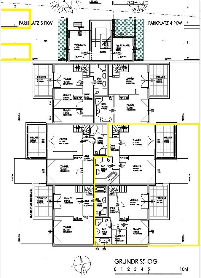
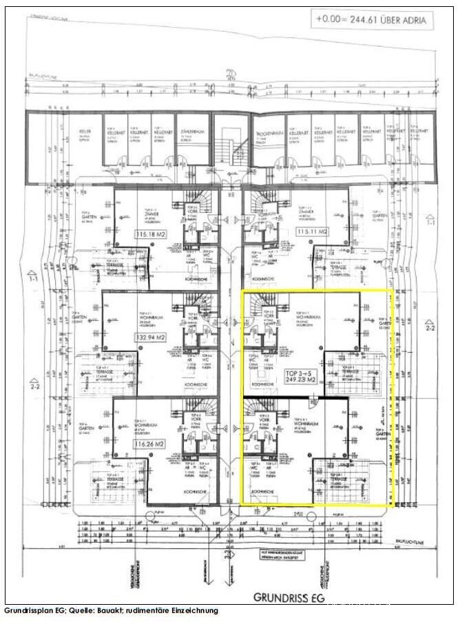
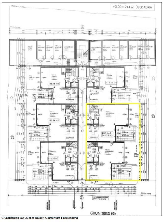
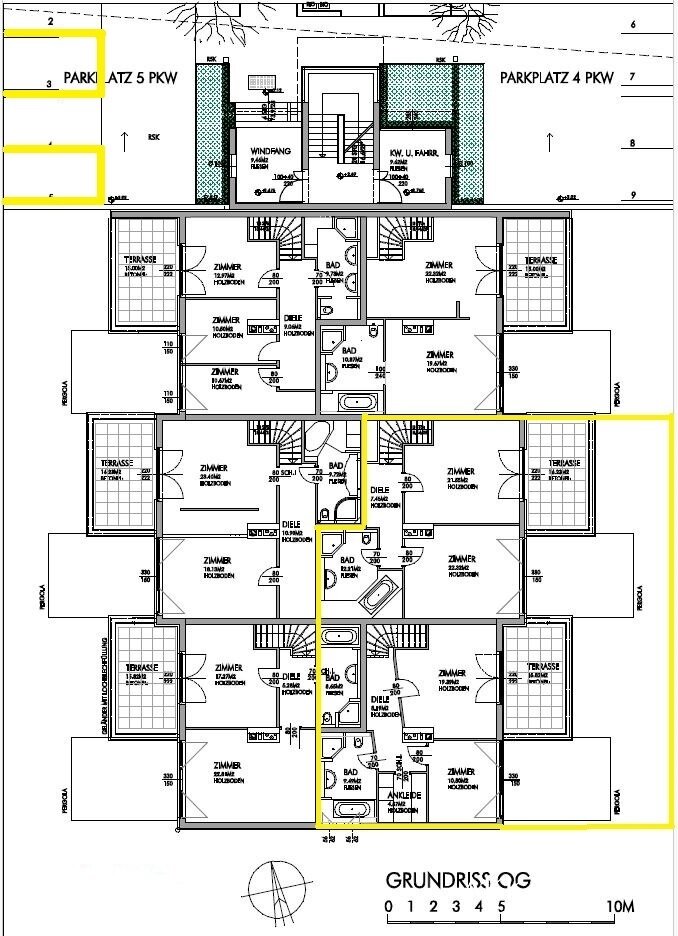
In einer ruhigen Seitengasse, unweit des Zentrums von Purkersdorf, befindet sich diese 2003 errichtete Wohnhausanlage mit nur 9 Einheiten.
Die Maisonette mit ca. 248 m² Wohnfläche und Eigengarten wurde aus zwei Wohnungen zusammengelegt und bietet viel Raum – eine Trennung
Mehr lesen
Adresse: Wintergasse
Ort: Purkersdorf
Bezirk: 3002
Bundesland: Niederösterreich
PLZ: 3002
Land: Österreich
Objekt ID: 2377716
Preis: € 719.000
Nutzfläche: 248 m2
Gesamtfläche: 0 m2
Ziimmer insgesamt: 6
Schlafzimmer: 6
Badezimmer: 2
Nutzungsart: Wohnen
Provisionspflichtig: ja
Provision: 25.884,00 € inkl. 20% USt.
HWB: 60,50 kWh/(m²*a)
HWB Klasse: C
Energieausweis Art: Bedarf
Balkon/Terrassen - Fläche: 69
WC: 4
Abstellräume: 2
Neubau
Gas
Parkett
Fußbodenheizung
Fahrradraum
offene Küche
Offene Küche
Carport
vollerschlossen
Gartennutzung
Ähnliche Objekte
Moderne, barrierefreie 3-Zimmer Gartenwohnun...
€ 395.000
3
Schlafzimmer
1
Badezimmer
91 m2
Größe
Mai 6, 2026


















