Objektbeschreibung
Istrien, Umag – Ökologische Villa in Meeresnähe
Diese moderne Villa in ruhiger, grüner Lage unweit von Umag steht zum Verkauf. Sie ist ideal für Käufer, die Wert auf Privatsphäre, hochwertige Öko-Bauweise und die Nähe zum Meer legen. Der Flughafen Pula ist 45 Minuten, Triest 60 Minuten und Venedig sowie Treviso
Mehr lesen
Objekt ID: 2387163
Preis: € 699.000
Nutzfläche: 0 m2
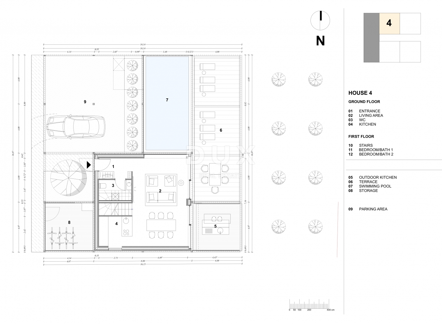
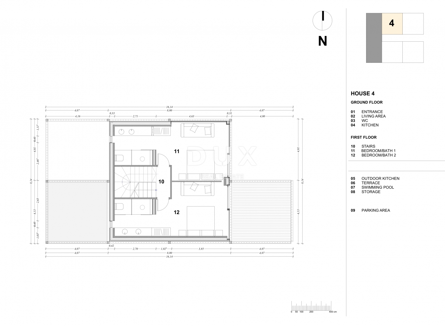
Gesamtfläche: 454 m2
Ziimmer insgesamt: 3
Schlafzimmer: 3
Badezimmer: 2
Nutzungsart: Wohnen
Provisionspflichtig: ja
WC: 1


















