Objektbeschreibung
ISTRIEN, MEDULIN – Luxuriöses Penthouse mit Blick auf die Bucht von Medulin
Medulin – einst ein kleines Fischerdorf, hat sich dank seiner attraktiven Lage zu einem der bekanntesten Touristenziele Istriens entwickelt. Genießen Sie die Vielfalt der Fels-, Kies- und Sandstrände und lassen Sie sich vom Charme der Natur verzaubern. Der
Mehr lesen
Objekt ID: 2390576
Preis: € 520.000
Nutzfläche: 0 m2
Gesamtfläche: 0 m2
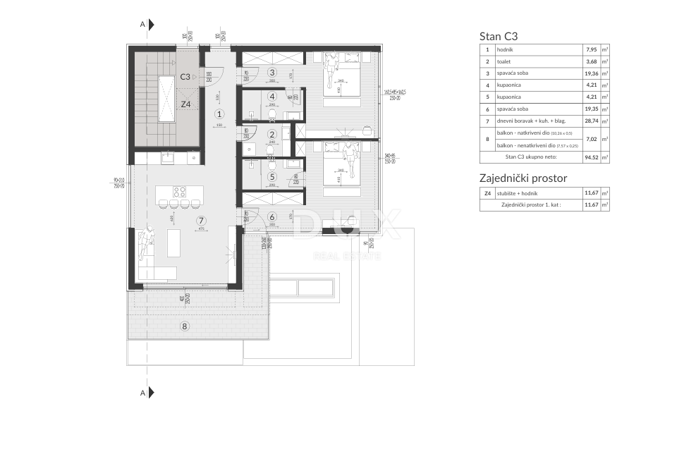
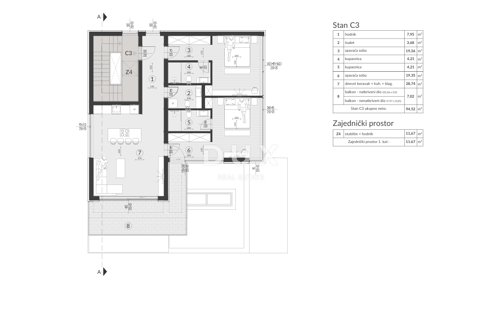
Ziimmer insgesamt: 3
Schlafzimmer: 3
Badezimmer: 2
Nutzungsart: Wohnen
Provisionspflichtig: ja
























