Objektbeschreibung
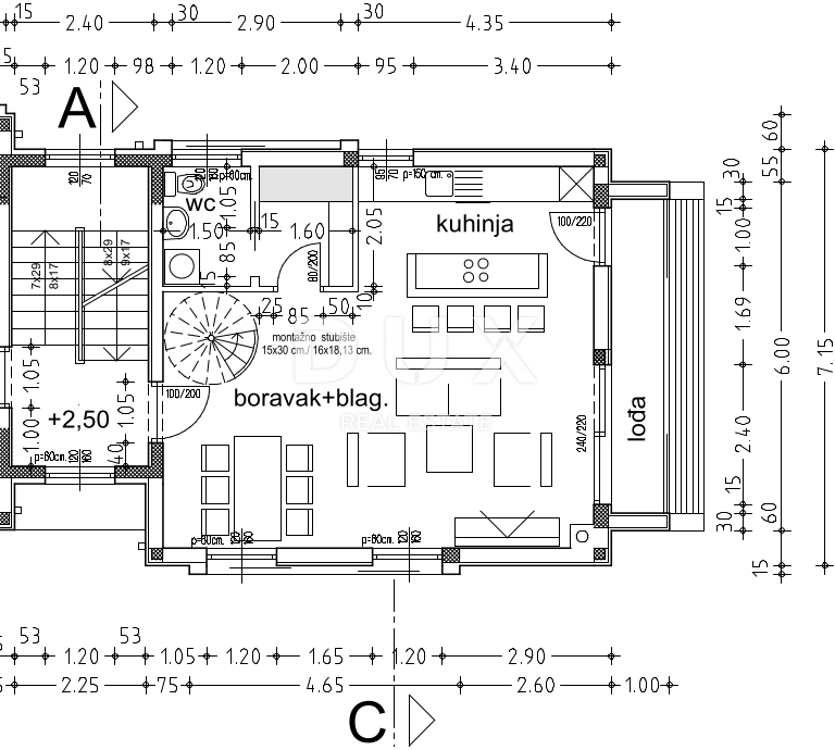
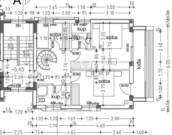
KASTAV, RUBEŠI – Maisonette-Wohnung 150 m², DB+3S mit Meerblick und Garage + Umgebung 200 m² – SO
Diese Maisonette-Wohnung ist nach Süden ausgerichtet, was den ganzen Tag über viel natürliches Licht ermöglicht. Auf einem Hügel gelegen, bietet es einen atemberaubenden Blick auf die umliegende Landschaft und das Meer. WOHNFLÄCHE: 106
Mehr lesen
Objekt ID: 2398353
Preis: € 565.000
Nutzfläche: 0 m2
Gesamtfläche: 0 m2
Ziimmer insgesamt: 4
Schlafzimmer: 4
Badezimmer: 2
Nutzungsart: Wohnen
Provisionspflichtig: ja
WC: 1










































































