Objektbeschreibung
ZAGREB, VELIKA GORICA – Luxus-Penthouse in einem neuen Gebäude!
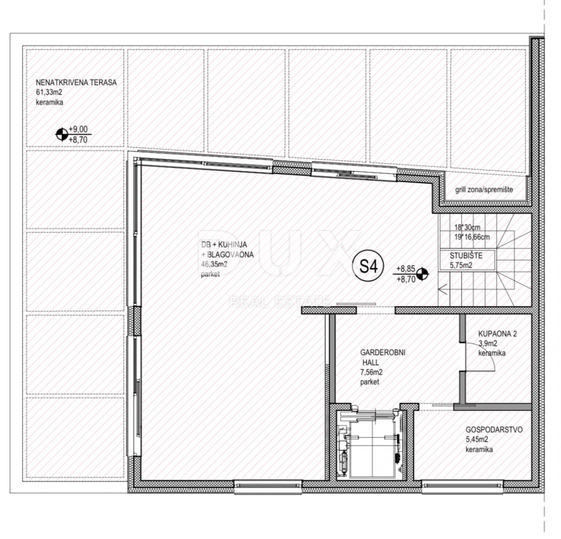
Zum Verkauf steht eine großzügige Penthousewohnung mit der Bezeichnung S4 in einem Neubau, gelegen im 2. Obergeschoss und einem Hochparterre, mit einer Gesamtnettonutzfläche von 142,43 m² (Grundfläche 195,28 m²). Die Wohnung besteht aus einem Wohnzimmer mit Küche und Esszimmer, Flur, Garderobenflur,
Mehr lesen
Objekt ID: 2403448
Preis: € 630.000
Nutzfläche: 0 m2
Gesamtfläche: 0 m2
Ziimmer insgesamt: 4
Schlafzimmer: 4
Badezimmer: 1
Nutzungsart: Wohnen
Provisionspflichtig: ja
WC: 1































