Objektbeschreibung
Stilvolle Eigentumswohnungen in Wiener Gründerzeithaus
Ihre neue Eigentumswohnung in einem äußerst gepflegten Wiener Altbau mitten in Währing wartet auf Sie!
Das repräsentative Altbauhaus zeigt sich in einem sehr guten Gesamtzustand. Die Fassaden zur Straße und zum Hof erstrahlen frisch gestrichen und der einladende Eingangsbereich wurde stilvoll modernisiert. Stimmungsvolle Beleuchtungselemente und
Mehr lesen
Dokumente
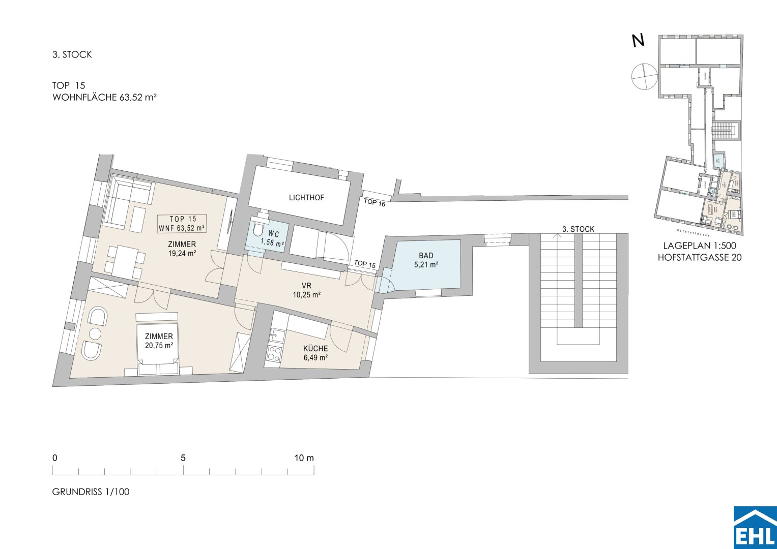
Objekt ID: 2417937
Preis: € 489.000
Nutzfläche: 64 m2
Gesamtfläche: 0 m2
Ziimmer insgesamt: 2
Schlafzimmer: 2
Badezimmer: 1
Miete/m2 €: 7698.36
Nutzungsart: Wohnen
Provisionspflichtig: ja
Provision: 3% des Kaufpreises zzgl. 20% USt.
HWB: 165,30 kWh/(m²*a)
HWB Klasse: E
FGEE: 2.37
E-Ausweis Gültig Bis:: 31.01.2033
Energieausweis Art: Bedarf
Beziehbar: sofort
Etage: 3. Etage / 3. Etage
WC: 1
Einbauküche
Altbau
Etagenheizung
Gas
Parkett
Bad mit Fenster
Kabel/Sat-TV






