Erweiterte Suche
Suchagent aktivieren
Exklusive Anzeigen

Wohnung Kotor Varoš, Banjalučka regija, 40m2

€ 122.100,00

,

3 Zimmer
zu Favoriten hinzufügen
teilen
Suchergebnisse

Objektbeschreibung

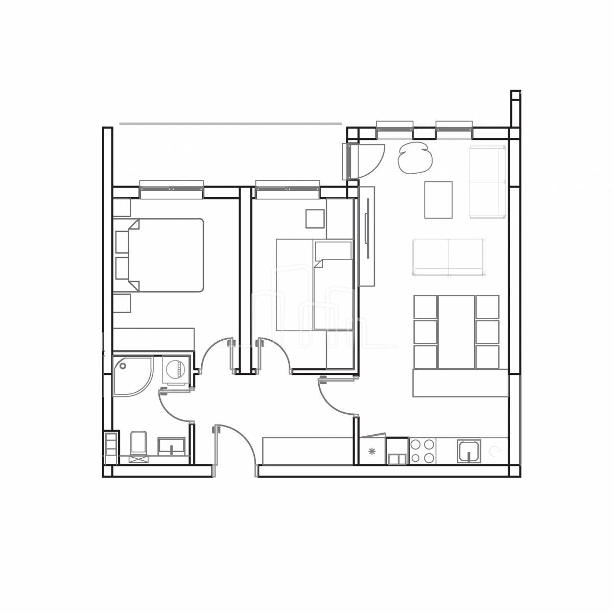
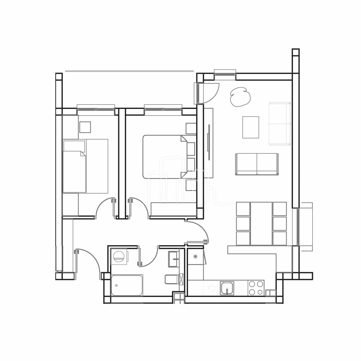
Die Immobilienagentur Stanpromet.ba Banja Luka präsentiert einen völlig neuen Lebensstil im exklusiven Viertel PARK RESIDENCE in Kotor Varoš, in toller Lage, in der Cara-Dušana-Straße. Zwei-Zimmer-Wohnungen von 55,5 und 59 Quadratmetern bestehen aus einer zentralen Eingangshalle, einem Wohnzimmer mit Esszimmer und Küche, zwei Schlafzimmern, einem großen Balkon und einem Badezimmer. Dieser
Mehr lesen

Bezirk:
PLZ: 78223
Land: Croatia
Objekt ID: 2425955
Preis: € 122.100
Nutzfläche: 0 m2
Gesamtfläche: 0 m2
Ziimmer insgesamt: 3
Schlafzimmer: 3
Badezimmer: 0
Nutzungsart: Wohnen
Provisionspflichtig: ja

Ähnliche Objekte


Želimir Krčić

Kontaktaufnahme









    • Preisinformation
      Objektpreis122.100,00 €

    Vergleichen