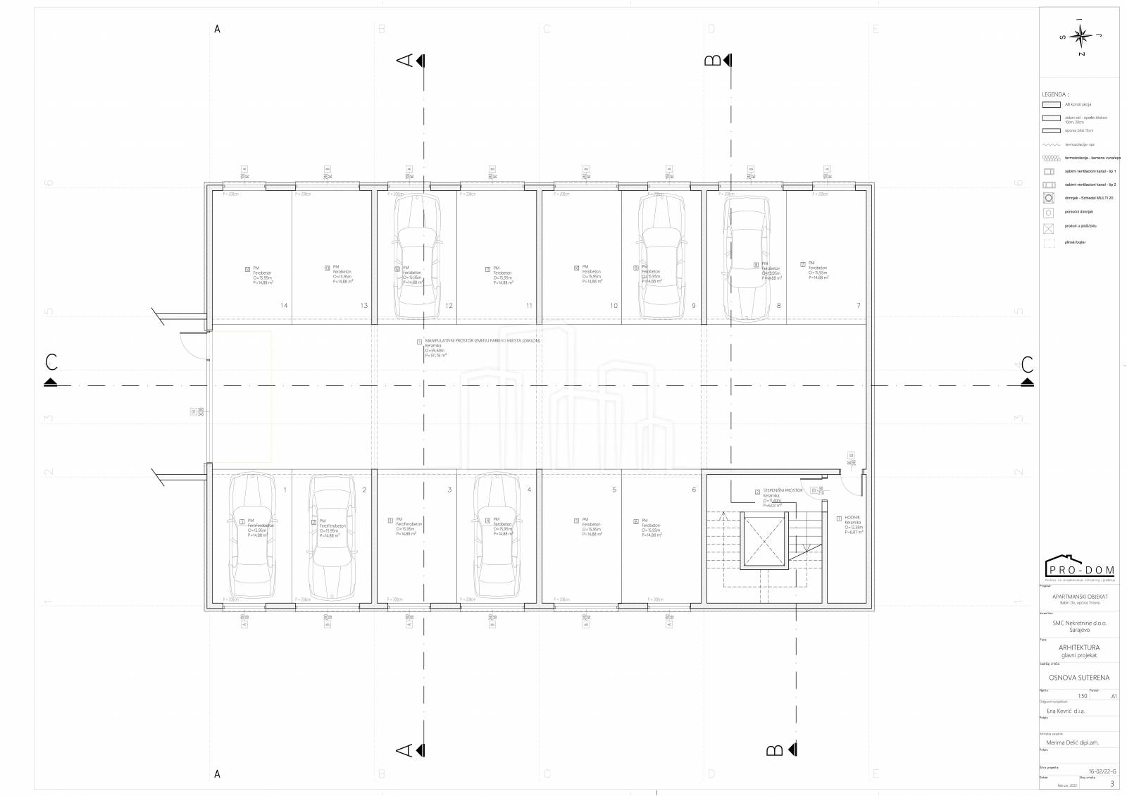
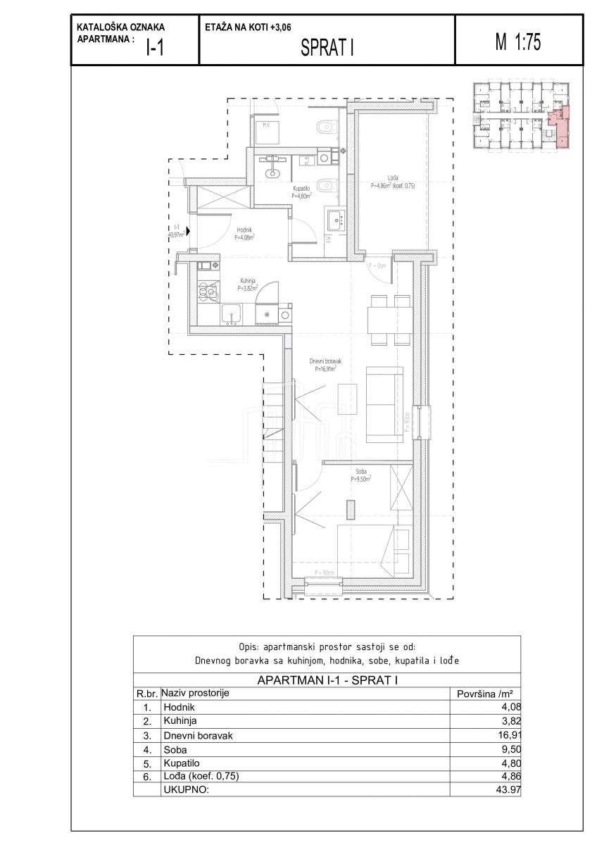
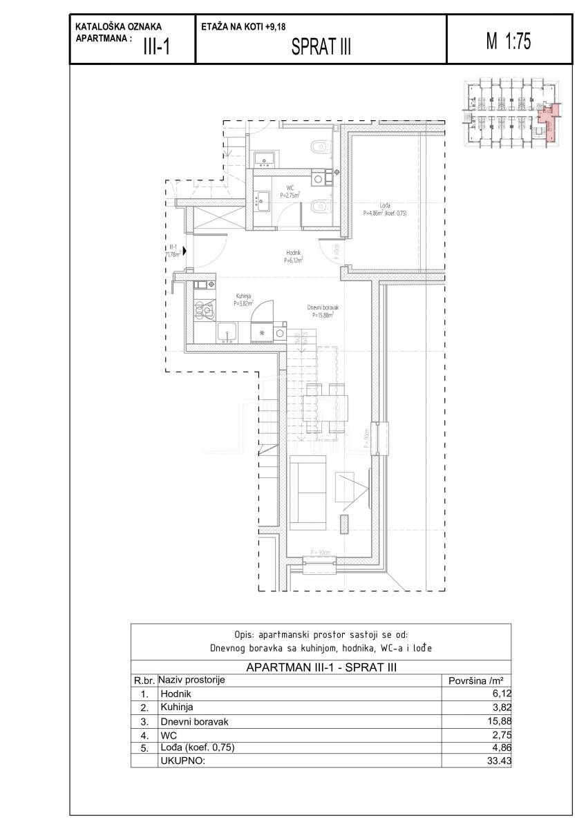
Objektbeschreibung
Die Immobilienagentur Stanpromet.ba ist stolz, den Verkauf von Wohnungen in der olympischen Schönheit Bjelašnica im Geschäfts- und Sportzentrum Trnovo präsentieren zu können. Der Standort liegt auf 1.300 Metern über dem Meeresspiegel im Herzen eines Nadelwaldes, ganz am Eingang des beliebten Babin Do. Die touristische Perle der olympischen Schönheit erstreckt sich
Mehr lesen
Objekt ID: 2426900
Preis: € 1
Nutzfläche: 0 m2
Gesamtfläche: 0 m2
Ziimmer insgesamt: 2
Schlafzimmer: 2
Badezimmer: 0
Nutzungsart: Wohnen














































