Objektbeschreibung
Doppelhaushälfte mit Meerblick in der Nähe von Novigrad zu verkaufen
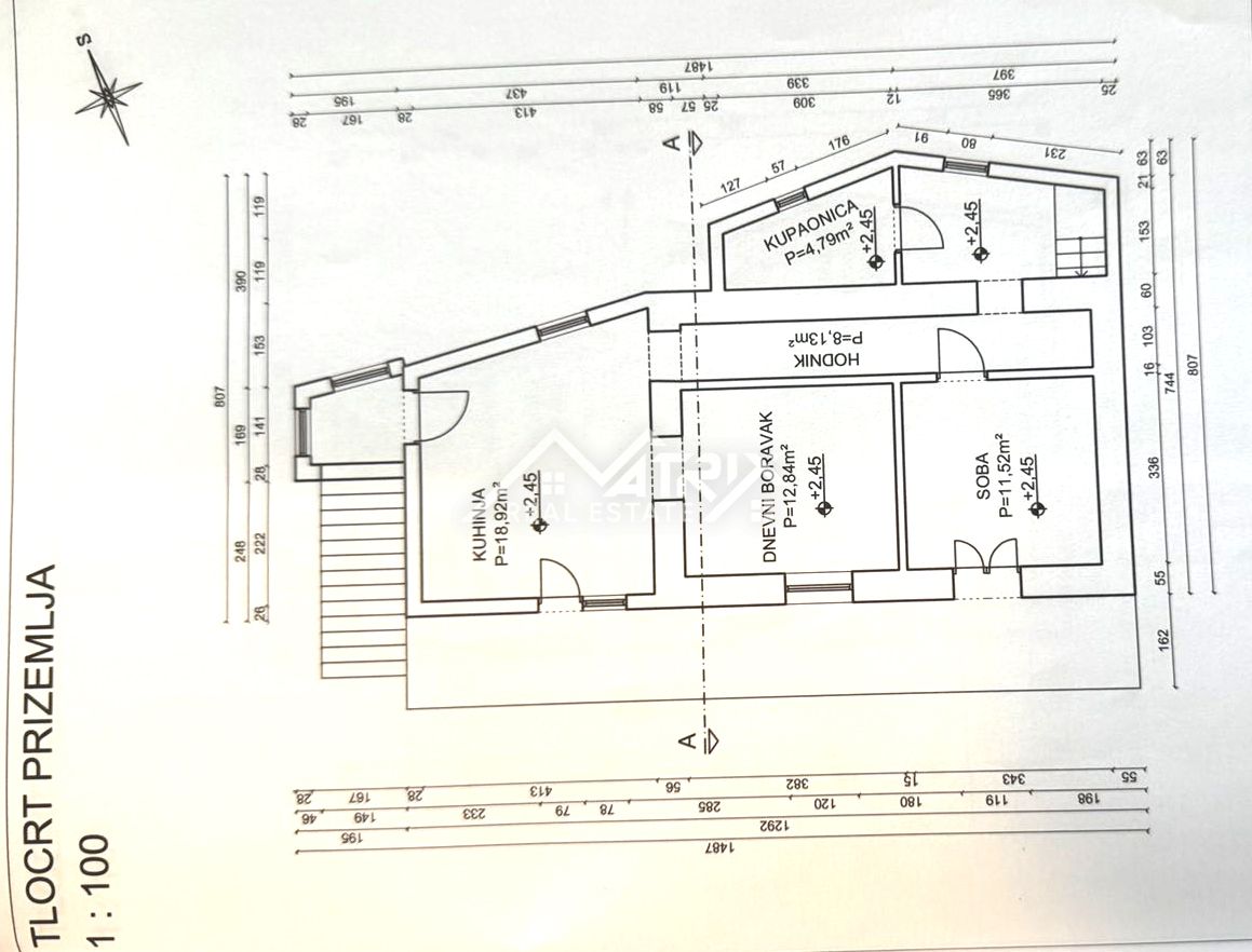
Das Haus erstreckt sich über drei Etagen – Erdgeschoss, erstes und zweites Obergeschoss – mit einer Gesamtfläche von 261 m².
Im Erdgeschoss befinden sich eine großzügige Taverne mit Kamin, ein Zimmer, ein Badezimmer, ein Abstellraum und eine Garage.
Mehr lesen
Objekt ID: 2432115
Preis: € 260.000
Nutzfläche: 0 m2
Gesamtfläche: 150 m2
Ziimmer insgesamt: 6
Schlafzimmer: 6
Badezimmer: 2
Nutzungsart: Wohnen
Provisionspflichtig: ja































