Objektbeschreibung
Wiener Geschichte neu komponiert !
Eingebettet zwischen Weinbergen, historischen Gassen und den vielen bekannten Heurigen von Nußdorf lädt das Neubauprojekt „VICUS NUCUM“ dazu ein, das besondere Wiener Lebensgefühl neu zu entdecken. Hier, wo sich Beethoven bei seinen täglichen Spaziergängen entlang des Schreiberbachs inspirieren ließ, verschmelzen Natur, Geschichte und moderner Wohnkomfort auf einzigartige Weise.
Tradition trifft auf
Mehr lesen
Objekt ID: 2438350
Preis: € 798.000
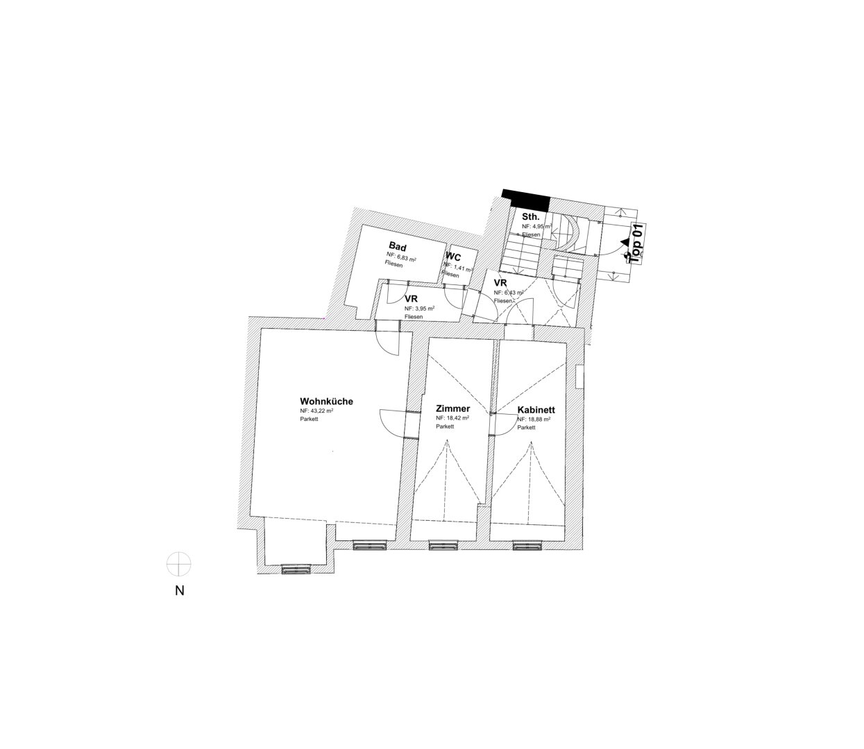
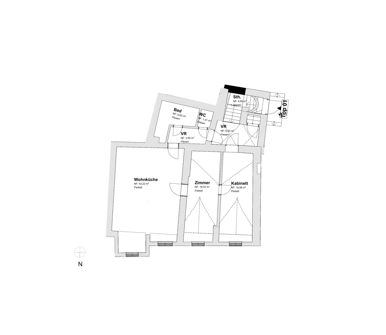
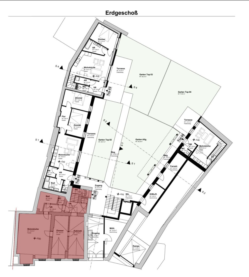
Nutzfläche: 104 m2
Gesamtfläche: 0 m2
Ziimmer insgesamt: 3
Schlafzimmer: 3
Badezimmer: 1
Nutzungsart: Wohnen
Provisionspflichtig: ja
Provision: 3% des Kaufpreises zzgl. 20% USt.
WC: 1
Fahrradraum







