Objektbeschreibung
TRAUN: GEWERBEFLÄCHEN MIT LAGER UND BÜROFLÄCHEN ZU MIETEN
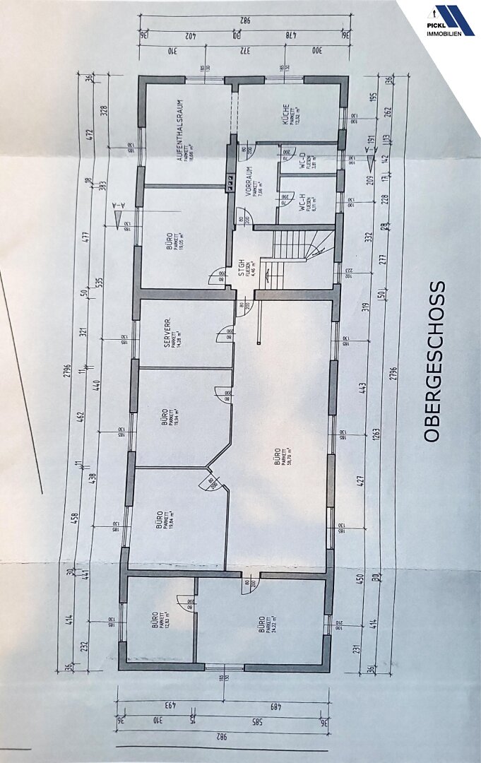
Willkommen in der Anzengruberstraße 20, 4050 Traun – Ihrem neuen Unternehmensstandort mit vielseitigem Nutzungspotenzial! Dieses gepflegte Gewerbeobjekt bietet Ihnen eine seltene Kombination aus modernen Büroräumen im 1. Obergeschoss und gut erreichbarer Lagerfläche im Kellergeschoss, direkt über eine befahrbare Rampe mit Rolltor zugänglich.
Mehr lesen
Dokumente
Objekt ID: 2438952
Nutzfläche: 0 m2
Gesamtfläche: 234 m2
Ziimmer insgesamt: 9
Schlafzimmer: 9
Badezimmer: 2
Miete/m2 €: 7.5
Miete (netto) €: 1755
USt €: 471
Nutzungsart: Gewerbe
Provisionspflichtig: ja
Kaution: 3 Bruttomonatsmieten
HWB: 178 kWh/(m²*a)
HWB Klasse: E
FGEE: 2.59
Energieausweis Art: Bedarf
Beziehbar: nach Vereinbarung
Max. Mietdauer: unbefristet
Etage: 1. Etage
WC: 2
Dusche
teilmöbliert
Klimaanlage
Freiplatz
Massiv
Massivbauweise
Fernheizung
Fernwärme
DV-Verkabelung


















