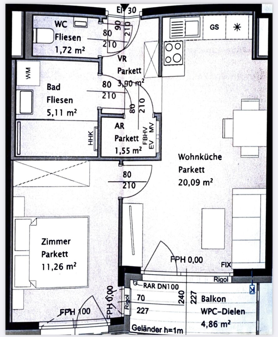
Objektbeschreibung
Zum Verkauf gelangt hier eine neuwertige und sehr gut geschnittene 2-Zimmer-Wohnung mit Balkon
und zusätzlich optionalem Garagenstellplatz im Neubauhaus mit Lift!
Die Wohnung ist sehr gut ausgestattet und gut gelegen in Richtung Süd-Osten.
Es erwartet Sie eine komplett ausgestattete Küche mit allen Geräten, eine schöne Wohnküche mit Zugang zum
Mehr lesen
Objekt ID: 2446375
Preis: € 309.000
Nutzfläche: 44 m2
Gesamtfläche: 0 m2
Ziimmer insgesamt: 2
Schlafzimmer: 2
Badezimmer: 1
Miete/m2 €: 7082.28
Nutzungsart: Wohnen
Provisionspflichtig: ja
Provision: 3% des Kaufpreises zzgl. 20% USt.
HWB: 23,30 kWh/(m²*a)
HWB Klasse: B
FGEE: 0.78
E-Ausweis Gültig Bis:: 30.11.2030
Energieausweis Art: Bedarf
Anzahl Balkone: 1
Balkon/Terrassen - Fläche: 5
Beziehbar: nach Vereinbarung
Etage: 4. Etage
WC: 1
Abstellräume: 1
Balkon
vollmöbliert
Neubau
Personenaufzug
Dusche
Fußbodenheizung
Kabel/Sat-TV
Fahrradraum
offene Küche
Abstellraum
Offene Küche
rollstuhlgerecht
Klimaanlage
Estrich
Fernwärme
Gartennutzung
seniorengerecht
Kamera
DVBT-Empfang
Tiefgarage
Neubaustandard
Niedrigenergiehaus
UMTS-Empfang
Ähnliche Objekte
Großzügige 4-Zimmer-Wohnung mit Dachterrasse...
€ 779.000
4
Schlafzimmer
1
Badezimmer
102 m2
Größe
Januar 8, 2026
Provisionsfrei! Erstbezug nach Sanierung: gr...
€ 549.000
4
Schlafzimmer
1
Badezimmer
100 m2
Größe
Januar 8, 2026





![Familientraum I Erstbezug [A] 1Rmcr6tntKj65sMsfuaINJ](https://gesucht-gefunden.at/wp-content/uploadstorage/2026/01/1Rmcr6tntKj65sMsfuaINJ-525x350.jpg)

