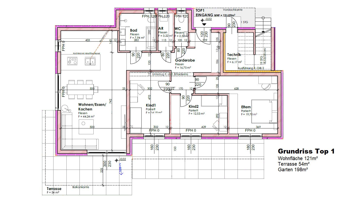
Objektbeschreibung
Mit einer Wohnfläche von 121m² wird Sie diese barrierefreie Erstbezugs-Gartenwohnung, durch die durchdachte Raumaufteilung und das offene, einladende Wohnerlebnis beeindrucken.
Auf über 44m² erstreckt sich der helle Wohn-Essbereich, der nahtlos an die 54m² große Terrasse und den 198m² großen Garten anschließt. Eine harmonische Verbindung die durch teils bodentiefe Fensterelemente und
Mehr lesen
Objekt ID: 2447640
Preis: € 499.000
Nutzfläche: 121 m2
Gesamtfläche: 0 m2
Ziimmer insgesamt: 4
Schlafzimmer: 4
Badezimmer: 1
Nutzungsart: Wohnen
Provisionspflichtig: ja
Provision: 3% des Kaufpreises zzgl. 20% USt.
HWB: 43,20 kWh/(m²*a)
HWB Klasse: B
FGEE: 0.64
E-Ausweis Gültig Bis:: 09.11.2032
Energieausweis Art: Bedarf
Balkon/Terrassen - Fläche: 54
Beziehbar: 2026
Etage: EG
WC: 2
Abstellräume: 1
barrierefrei
Neubau
Fußbodenheizung
Freiplatz
Luft-Wärmepumpe
Massiv
Massivbauweise
Ähnliche Objekte
Graz-Umgebung: Traumhafte Terrassenwohnung f...
€ 525.000
4
Schlafzimmer
1
Badezimmer
125 m2
Größe
Dezember 13, 2025
Luxuriös & Naturnah: Ihre Traum-Gartenwo...
€ 650.000
4
Schlafzimmer
1
Badezimmer
121 m2
Größe
Dezember 10, 2025













