Objektbeschreibung
PROVISIONSFREI – THE WATERFRONT CURIOSITY – ABSOLUTE SELTENHEIT – EIGENGRUND BEI DER ALTEN DONAU!
Es ist an der Zeit, Wohnqualität neu zu definieren, Maßstäbe in Sachen Lebensqualität, Architektur und Service zu setzen. Überragende Architektur, die schon auf den ersten Blick fasziniert und aufgeteilt auf vier Gebäudekörpern genau das hält, was
Mehr lesen
Objekt ID: 2452418
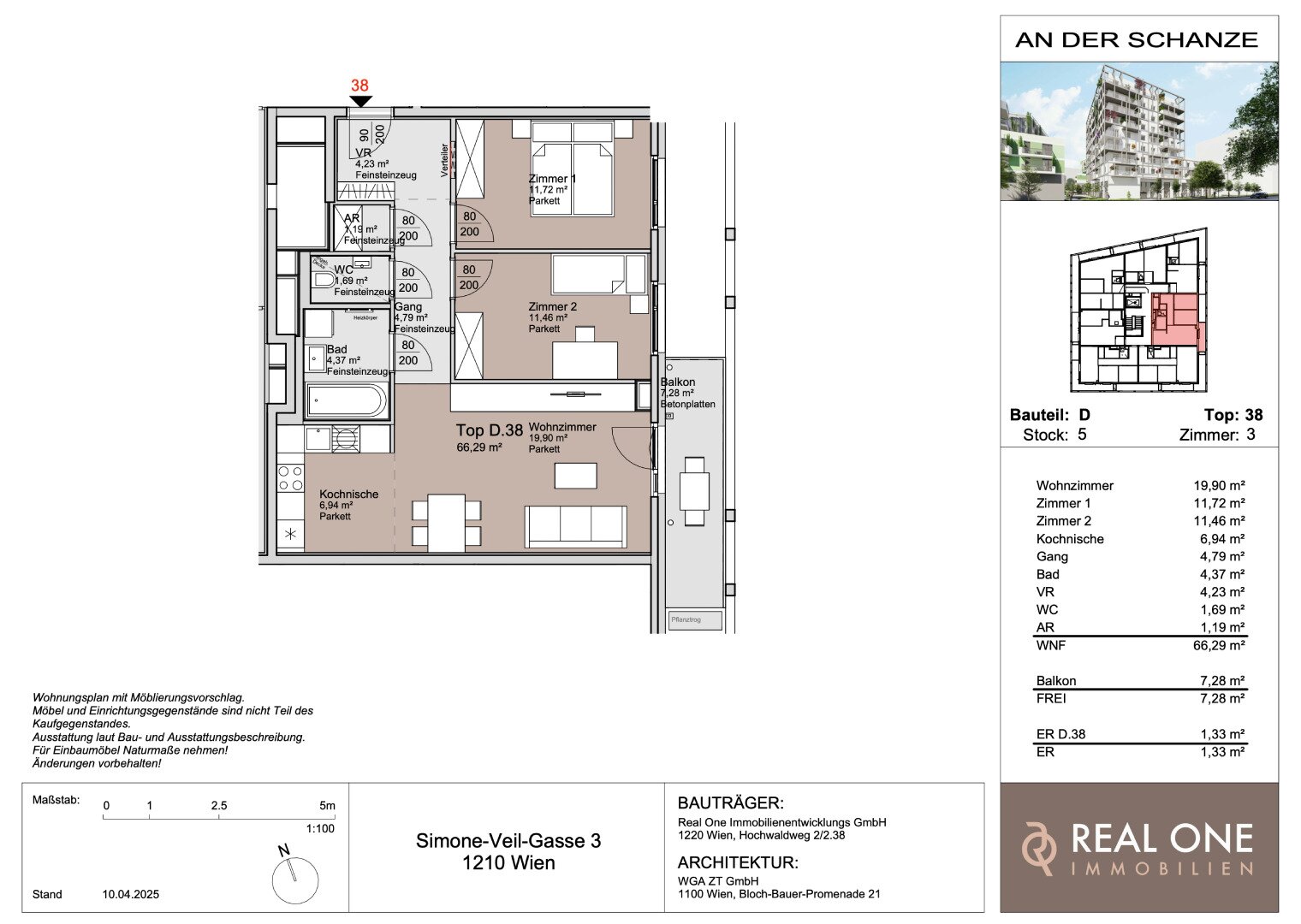
Preis: € 455.000
Nutzfläche: 66 m2
Gesamtfläche: 74 m2
Ziimmer insgesamt: 3
Schlafzimmer: 3
Badezimmer: 1
Nutzungsart: Wohnen
Provisionspflichtig: nein
HWB: 21,90 kWh/(m²*a)
HWB Klasse: B
FGEE: 0.78
E-Ausweis Gültig Bis:: 03.09.2030
Energieausweis Art: Bedarf
Anzahl Balkone: 1
Balkon/Terrassen - Fläche: 7
Beziehbar: 2026
Etage: 5. Etage / 5. Liftstock
WC: 1
Abstellräume: 1
Balkon
barrierefrei
Neubau
Einbauküche
Personenaufzug
Badewanne
Fußbodenheizung
Kabel/Sat-TV
Fahrradraum
offene Küche
Abstellraum
Offene Küche
Klimaanlage
Estrich
Fernwärme
Tiefgarage
Ähnliche Objekte
Directly at the main train station: Big 4-ro...
€ 820.000
4
Schlafzimmer
2
Badezimmer
125 m2
Größe
April 17, 2026
7. Floor – Directly at the main train ...
€ 399.000
2
Schlafzimmer
1
Badezimmer
51 m2
Größe
April 17, 2026
Hot offer! Directly at the main train statio...
€ 390.000
2
Schlafzimmer
1
Badezimmer
51 m2
Größe
April 17, 2026


















