Objektbeschreibung
PRIVLAKA, SABUNIKE – Doppelhaushälfte mit Pool im Bau
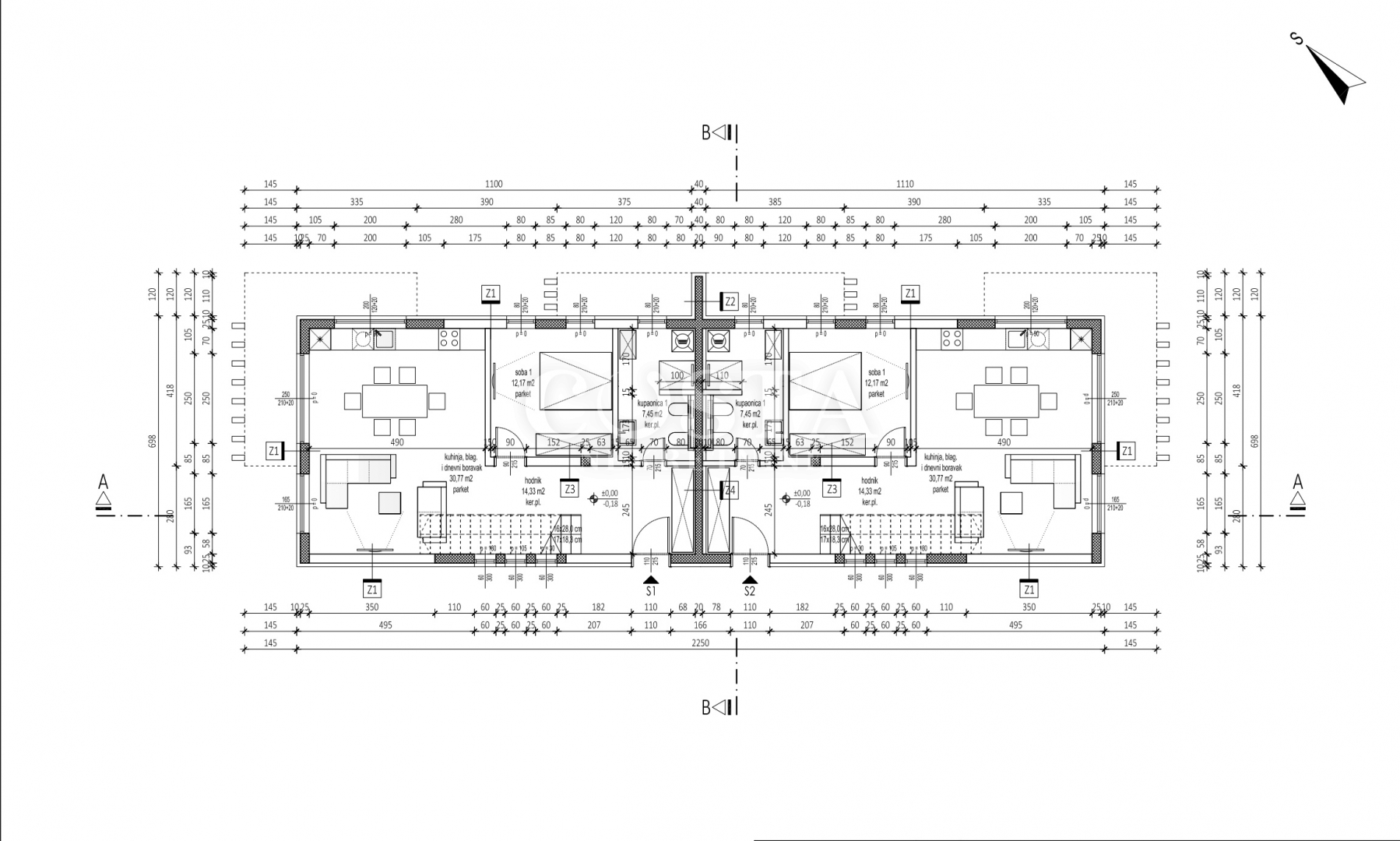
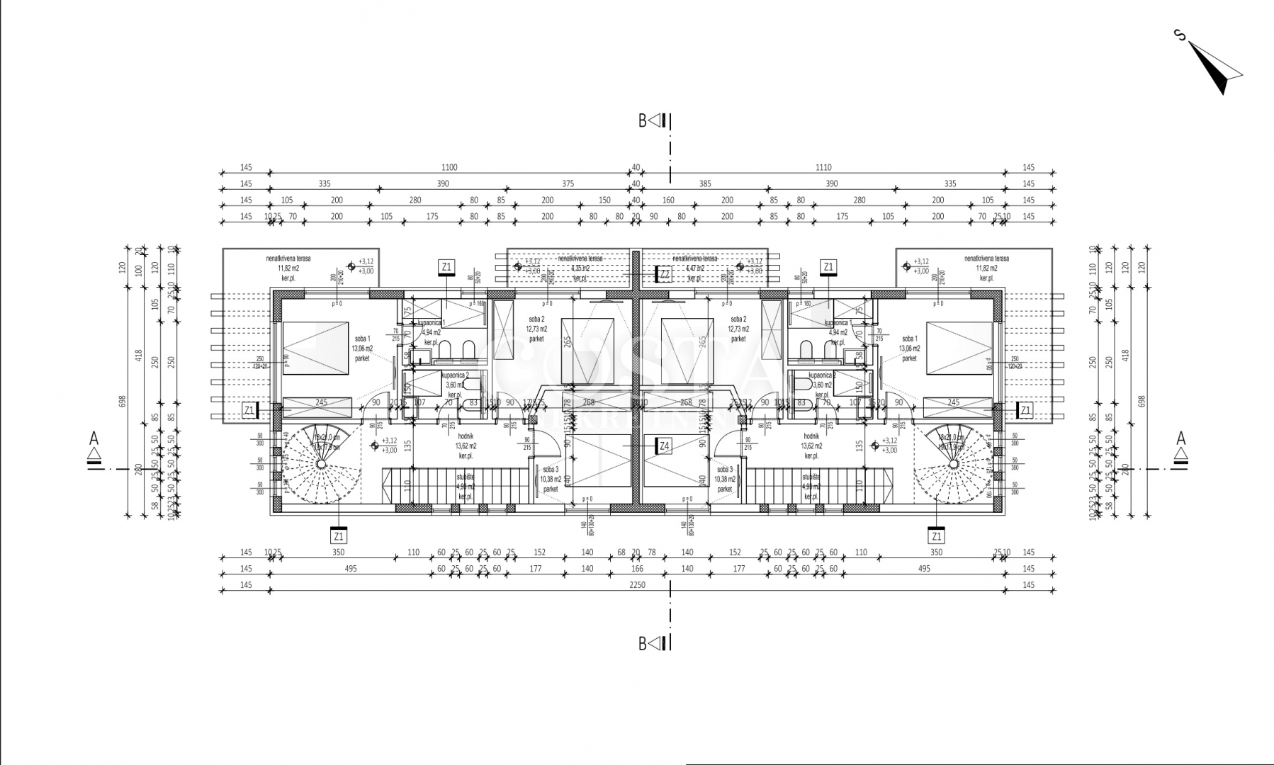
In Sabunike bei Zadar steht eine Doppelhaushälfte zum Verkauf. Die Villa mit einer Wohnfläche von 372 m² entsteht auf einem 544 m² großen Grundstück. Sie besteht aus zwei separaten Wohneinheiten mit jeweils eigenem Eingang. Jede Wohneinheit verfügt über ein Erdgeschoss, ein Obergeschoss
Mehr lesen
Objekt ID: 2458067
Preis: € 1.475.000
Nutzfläche: 0 m2
Gesamtfläche: 544 m2
Ziimmer insgesamt: 10
Schlafzimmer: 10
Badezimmer: 8
Nutzungsart: Wohnen
Provisionspflichtig: ja

















