Objektbeschreibung
In einem liebevoll sanierten Altbau eröffnet sich eine Immobilie, die durch ihre Großzügigkeit, ihre außergewöhnliche Raumhöhe und ihr beeindruckendes Gestaltungspotenzial überzeugt – ein Refugium für Individualisten mit Sinn für Stil und Struktur.
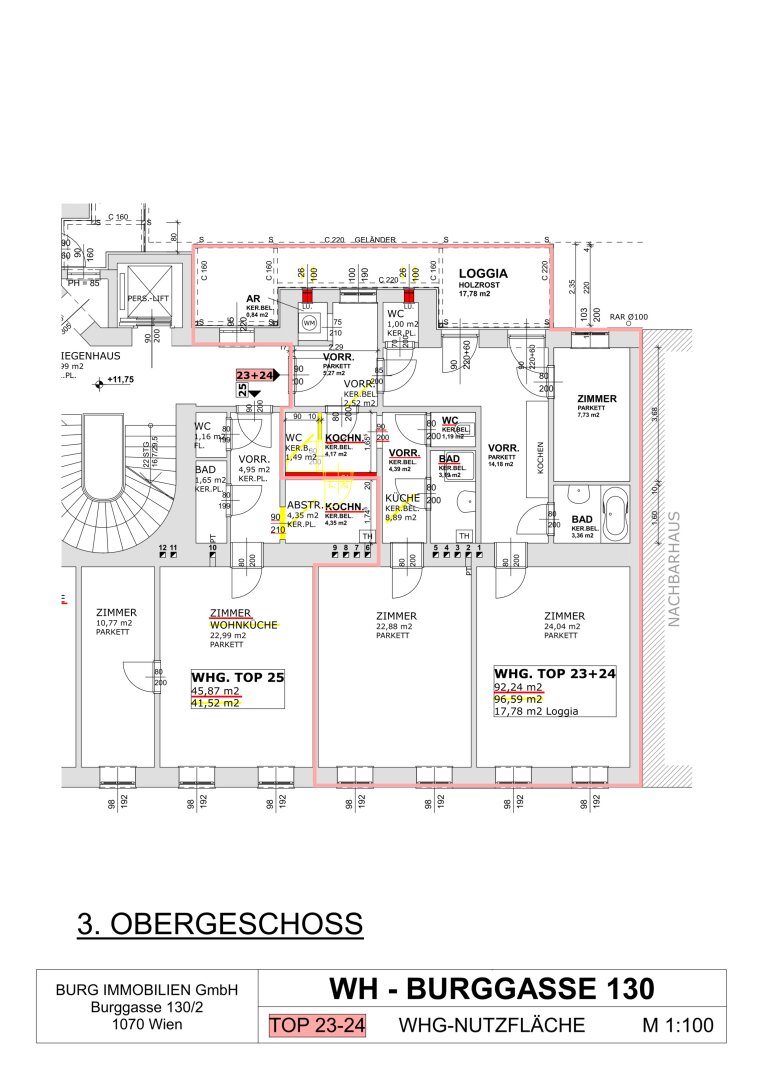
Die einzigartige Wohnung befindet sich im 3. Stock eines charmanten, vollständig sanierten und aufgestockten Altbauhauses. Sie besteht aus
Mehr lesen
Objekt ID: 2471802
Preis: € 729.000
Nutzfläche: 92 m2
Gesamtfläche: 110 m2
Ziimmer insgesamt: 3
Schlafzimmer: 3
Badezimmer: 2
Nutzungsart: Wohnen
Provisionspflichtig: ja
Provision: 26.244,00 € inkl. 20% USt.
HWB: 72,30 kWh/(m²*a)
HWB Klasse: C
FGEE: 1.27
E-Ausweis Gültig Bis:: 07.08.2025
Energieausweis Art: Bedarf
Anzahl Balkone: 1
Balkon/Terrassen - Fläche: 17
Etage: 3. Etage
WC: 2
Abstellräume: 1
Balkon
Einbauküche
WG-geeignet
Personenaufzug
Gäste-WC
Altbau
Parkett
Bad mit Fenster
Zentralheizung
offene Küche
Abstellraum
Offene Küche
Klimaanlage
Luft-Wärmepumpe
Massiv
Massivbauweise
Räume veränderbar
Ähnliche Objekte
Stilvoll sanierte 1-Zimmer-Eigentumswohnung ...
€ 219.000
1
Schlafzimmer
1
Badezimmer
38 m2
Größe
Januar 9, 2026
Top-Frequenzlage & Grundriss auch für Pr...
€ 398.800
4
Schlafzimmer
2
Badezimmer
121 m2
Größe
Januar 9, 2026






