Objektbeschreibung
STILVOLLER ALTBAUCHARME MIT BALKON – 3-ZIMMER-WOHNUNG IM GENERALSANIERTEN STILHAUS
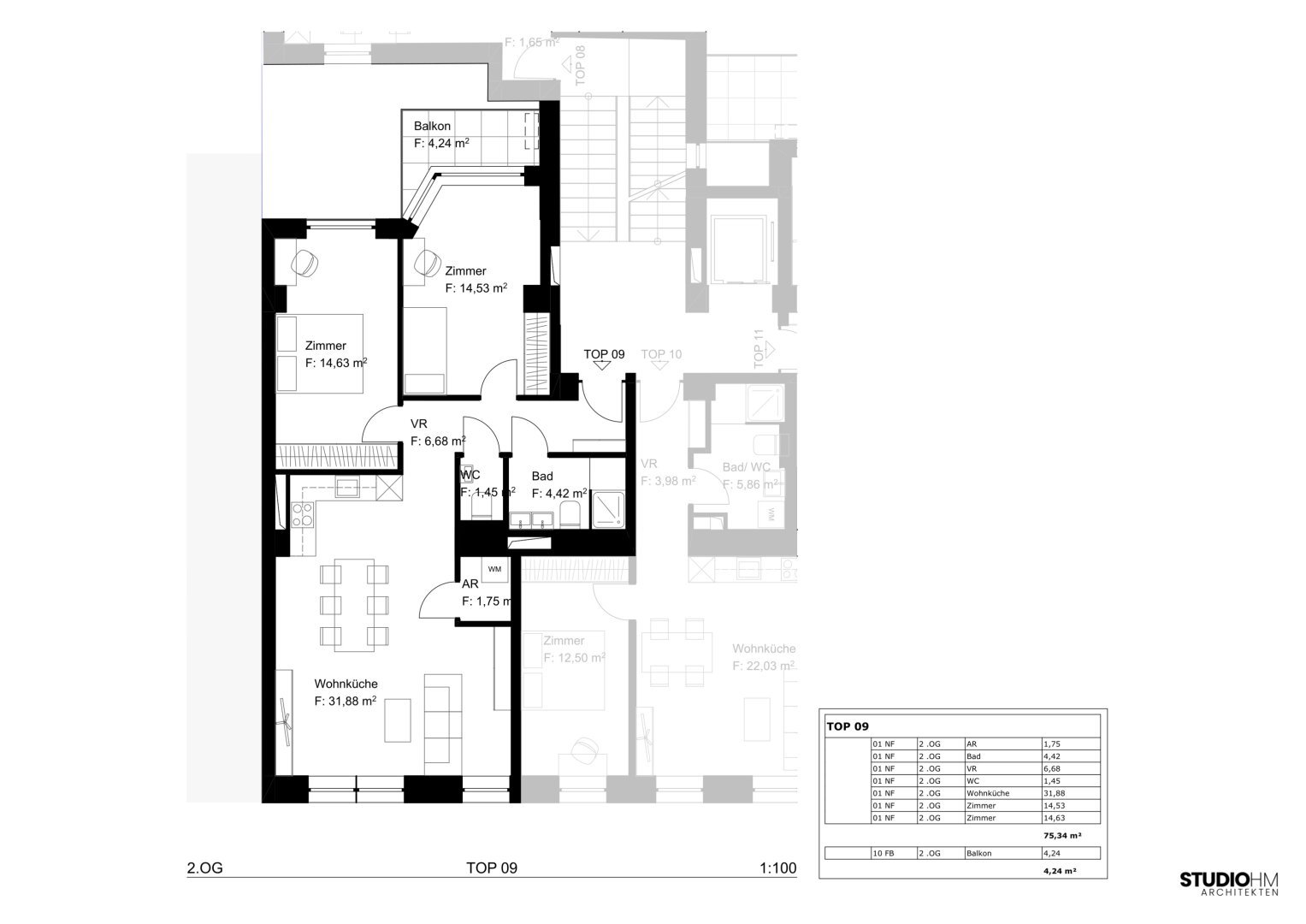
Zum Verkauf gelangt eine derzeit in Sanierung befindliche, optimal aufgeteilte 3-Zimmer-Altbauwohnung mit ca. 75 m² Wohnfläche und Balkon in ausgezeichneter Lage der Brigittenau.
Diese stilvolle Einheit vereint klassischen Wiener Altbaucharme mit moderner Ausstattung und hochwertiger Sanierung – ideal als Eigennutzung oder Anlageobjekt.
————————-
Mehr lesen
Objekt ID: 2476626
Preis: € 489.000
Nutzfläche: 75 m2
Gesamtfläche: 0 m2
Ziimmer insgesamt: 3
Schlafzimmer: 3
Badezimmer: 1
Nutzungsart: Anlage
Provisionspflichtig: ja
Provision: 3% des Kaufpreises zzgl. 20% USt.
HWB: 173,30 kWh/(m²*a)
FGEE: 2.14
Energieausweis Art: Bedarf
Anzahl Balkone: 1
Balkon/Terrassen - Fläche: 4
Etage: 2. Etage
WC: 1
Abstellräume: 1
Balkon
WG-geeignet
Personenaufzug
Gäste-WC
Dusche
Zentralheizung
Abstellraum
Luft-Wärmepumpe
Estrich
Ähnliche Objekte
Großzügiges Altbauensemble im 2. Liftstock –...
€ 1.280.000
7
Schlafzimmer
2
Badezimmer
160 m2
Größe
Februar 24, 2026
Bezugsfertig und sofort beziehbar: Maja – Ih...
€ 295.900
2
Schlafzimmer
1
Badezimmer
43 m2
Größe
Februar 24, 2026
Rendite-Hit: Anlegerwohnung mit Sorglos-Verm...
€ 197.387
1
Schlafzimmer
1
Badezimmer
28 m2
Größe
Februar 24, 2026

















