Erweiterte Suche
Suchagent aktivieren
Exklusive Anzeigen

VODICE – PENTHOUSE IN MEERESNÄHE MIT WUNDERSCHÖNER AUSSICHT

€ 415.000,00

,

3 Zimmer
zu Favoriten hinzufügen
teilen
Suchergebnisse

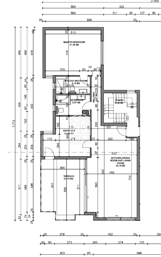
Objektbeschreibung

VODICE – PENTHOUSE IN MEERESNÄHE MIT WUNDERSCHÖNER AUSSICHT

In Vodice, einem der begehrtesten Touristenziele an der Adria, entsteht ein Penthouse, das wirklich etwas Besonderes bietet – eine Kombination aus ruhiger Lage, Strandnähe und atemberaubender Aussicht.

Dieses Penthouse befindet sich in einer neuen Stadtvilla in einem Viertel mit luxuriösen Ferienhäusern, nur
Mehr lesen

Ort:
Bezirk:
PLZ: 22211
Land: Croatia
Objekt ID: 2480464
Preis: € 415.000
Nutzfläche: 0 m2
Gesamtfläche: 0 m2
Ziimmer insgesamt: 3
Schlafzimmer: 3
Badezimmer: 0
Nutzungsart: Wohnen
Provisionspflichtig: ja

Ähnliche Objekte

vergleichen
1594212928 img 8094

Vodice, nahe dem Strand Lovetovo, Penthouse ...

€ 506.370
4
Schlafzimmer
2
Badezimmer
März 1, 2026
vergleichen
1608637541 k a jugozapad 2

Vodice, Maisonette-Wohnung 113,70 m2, 3 Schl...

€ 380.895
4
Schlafzimmer
2
Badezimmer
März 1, 2026
vergleichen
1608637532 k a istok 1

Vodice, Maisonette-Wohnung 102,70 m2, 3 Schl...

€ 344.045
4
Schlafzimmer
2
Badezimmer
März 1, 2026

Vergleichen