Objektbeschreibung
Traumgrundstück mit Acker dahinter…
Zum Verkauf gelangt ein ca. 736m² großes Grundstück in TOP Lage von Vösendorf.
Bebaut ist ein Sanierungsbedürftiger Bungalow mit 2 Schlafzimmer und 1 Wohnzimmer (Grundriss auf Anfrage).
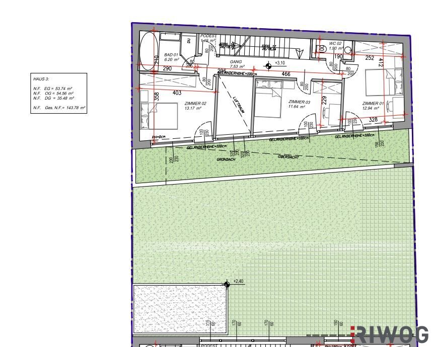
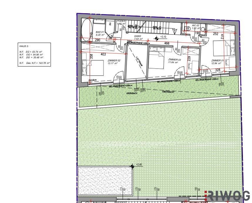
Die Bebauungsbestimmungen lassen sowohl ein großes Haus (35% bebaubar) als auch 3 Wohneinheiten zu (Studie siehe BILDER bzw. auf Anfrage).
Mehr lesen
Objekt ID: 2488414
Preis: € 499.000
Nutzfläche: 107 m2
Gesamtfläche: 736 m2
Ziimmer insgesamt: 3
Schlafzimmer: 3
Badezimmer: 0
Nutzungsart: Wohnen
Provisionspflichtig: ja
Provision: 3% des Kaufpreises zzgl. 20% USt.
WC: 1
Abstellräume: 1
Ähnliche Objekte
Das Leben beginnt hier – modernes Einfamilie...
€ 270.000
3
Schlafzimmer
1
Badezimmer
54 m2
Größe
November 17, 2025




























