Objektbeschreibung
Am Garnmarkt – Wohnen. Leben. Einkaufen
Am Garnmarkt in Götzis ist ein überregional bedeutender Standort mit einer Durchmischung von Einkaufen, Arbeiten und Wohnen. Das Areal mit einer Vielzahl an Geschäften, Büros und Ordinationen, Bildungseinrichtungen sowie einem vielfältigen Kultur- und Gastronomieangebot ist zu einem belebten, urbanen Teil des Ortszentrums geworden.
Mehr lesen
Objekt ID: 2489457
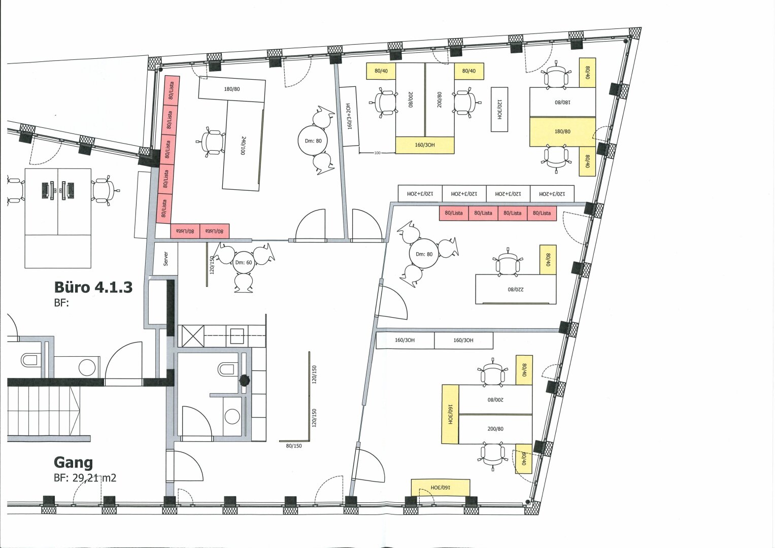
Nutzfläche: 0 m2
Gesamtfläche: 0 m2
Ziimmer insgesamt: 0
Schlafzimmer: 0
Badezimmer: 0
Miete (netto) €: 2262
Betriebskosten €: 433
Nutzungsart: Gewerbe
Provisionspflichtig: ja
Kaution: 3 Bruttomonatsmieten
HWB: 44,06 kWh/(m²*a)
HWB Klasse: B
FGEE: 0.99
E-Ausweis Gültig Bis:: 18.01.2034
Energieausweis Art: Bedarf
Beziehbar: 01.01.2026
Etage: 1. Etage
barrierefrei
Personenaufzug
Fußbodenheizung
Kabel/Sat-TV
Teppich
Klimaanlage
Massiv
Massivbauweise
Fernwärme
Räume veränderbar
Teeküche
Tiefgarage
Flachdach
Reinigung






