Objektbeschreibung
REPRÄSENTATIVE BÜRO MIT STELLPLATZ – ODER PRAXISFLÄCHE IN 1040 WIEN
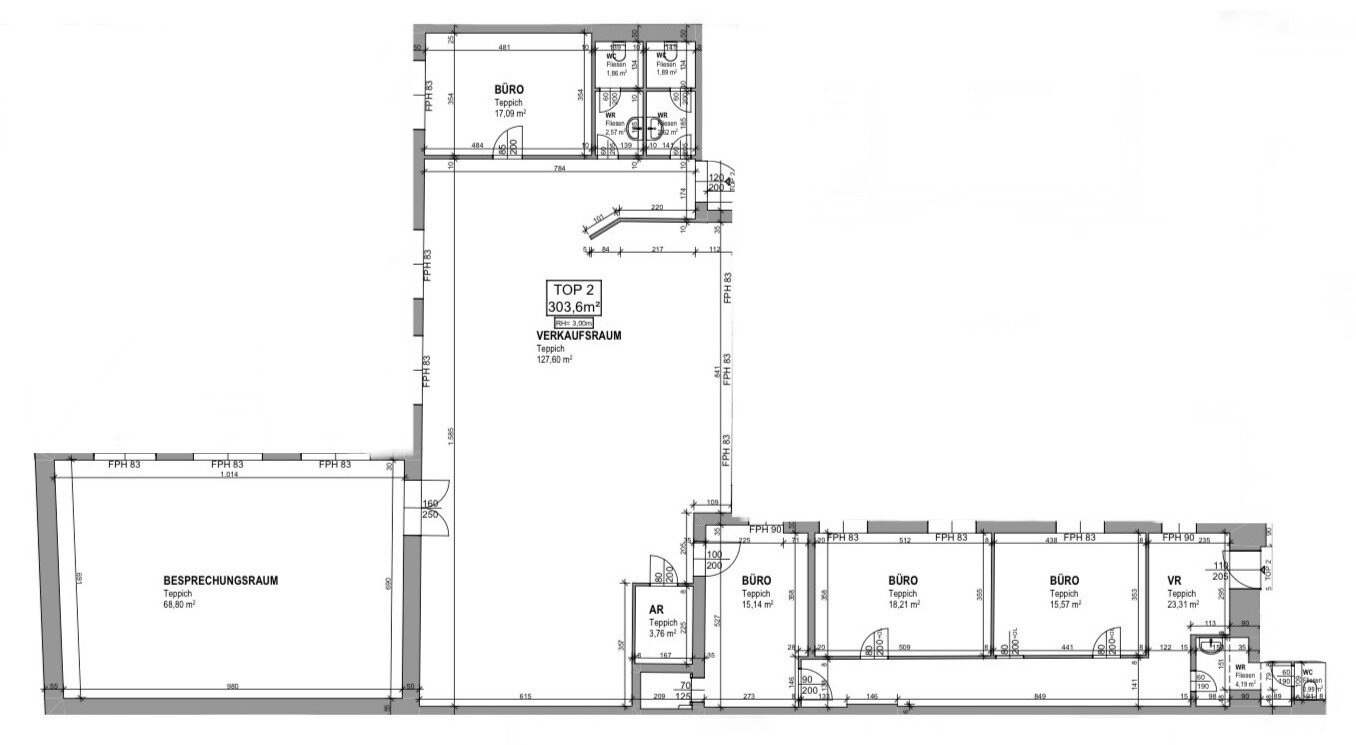
Diese rund 303,6 m² große Gewerbeeinheit zur Miete befindet sich im 1. Obergeschoss eines gepflegten Neubaus mit Personenaufzug und überzeugt durch ihre moderne Ausstattung, großzügige Raumaufteilung sowie eine ausgezeichnete Infrastruktur. Die Fläche eignet sich ideal als Büro, Ordination oder Praxis
Mehr lesen
Objekt ID: 2496954
Nutzfläche: 0 m2
Gesamtfläche: 0 m2
Ziimmer insgesamt: 6
Schlafzimmer: 6
Badezimmer: 0
Miete (netto) €: 3000
USt €: 721.44
Nutzungsart: Gewerbe
Provisionspflichtig: ja
Etage: 1. Etage
WC: 3
Abstellräume: 1
Neubau
Personenaufzug
Etagenheizung
Fliesen
Fernwärme






