Erweiterte Suche
Andere Eigenschaften
Suchagent aktivieren
Exklusive Anzeigen

Zentrale Bürofläche mit 10 Zimmern und Stellplatz – ideal für Praxis oder Kanzlei

,

10 Zimmer
zu Favoriten hinzufügen
teilen
Suchergebnisse

Objektbeschreibung

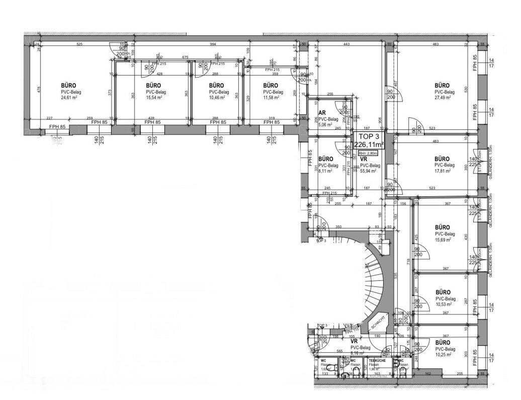
ZENTRALE BÜROFLÄCHE MIT 10 ZIMMERN UND STELLPLATZ – IDEAL FÜR PRAXIS ODER KANZLEI

In ruhiger und dennoch zentraler Lage des 4. Wiener Gemeindebezirks gelangt eine vielseitig nutzbare Büro- bzw. Praxisfläche mit einer Nutzfläche von ca. 226 m² zur Vermietung. Die Einheit befindet sich im 2. Liftstock eines gepflegten Neubaus und
Mehr lesen

Ort:
Bezirk:
Bundesland:
PLZ: 1040
Land: Österreich
Objekt ID: 2496991
Nutzfläche: 0 m2
Gesamtfläche: 0 m2
Ziimmer insgesamt: 10
Schlafzimmer: 10
Badezimmer: 0
Miete (netto) €: 2200
USt €: 530.44
Nutzungsart: Gewerbe
Provisionspflichtig: ja
Etage: 2. Etage
WC: 3
Abstellräume: 1
Neubau
Personenaufzug
Etagenheizung
Linoleum
Fernwärme

ADAMANT IMMOBILIEN GmbH
David Plishtiev

Kontaktaufnahme









    • Preisinformation
      Miete netto2.200,00 €
      Ust.530,44 €

    Vergleichen