Objektbeschreibung
Das großzügige Raumkonzept kombiniert mit hochwertiger Ausstattung machen hier das Wohnen tagtäglich zum speziellen Erlebnis.
.
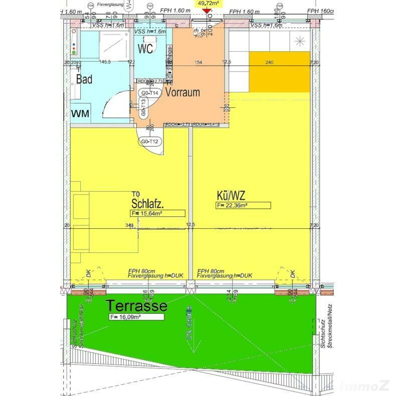
Die sonnige Terrassenwohnung mit Südausrichtung besteht aus Diele, 2 extra begehbaren Zimmer, Küche, Bad und WC je mit Fenster sowie einer überdachten Süd-Terrasse und Kellerabteil.
Ein Tiefgaragenplatz ist in der Miete enthalten.
Mehr lesen
Objekt ID: 2498247
Preis: € 850 pro Monat
Nutzfläche: 48 m2
Gesamtfläche: 0 m2
Ziimmer insgesamt: 2
Schlafzimmer: 2
Badezimmer: 1
Miete (netto) €: 490.49
USt €: 70.77
Gesamtbelastung €: 850
Nutzungsart: Wohnen
Kaution: Überweisung
HWB: 49,20 kWh/(m²*a)
HWB Klasse: B
FGEE: 0.98
E-Ausweis Gültig Bis:: 21.02.2032
Energieausweis Art: Bedarf
Balkon/Terrassen - Fläche: 15
Beziehbar: 01.03.2026
WC: 1
barrierefrei
Neubau
Einbauküche
Personenaufzug
Parkett
Bad mit Fenster
Kabel/Sat-TV
Fernheizung
Fernwärme
Tiefgarage
Keller
Ähnliche Objekte
GRÜN & RUHIG GELEGEN: Sonnige 4-Zimmer-W...
€ 1.257.81
4
Schlafzimmer
1
Badezimmer
77 m2
Größe
März 4, 2026

















