Objektbeschreibung
ZADAR, DONJI KARIN – Freistehendes Haus mit drei Wohnungen und Meerblick
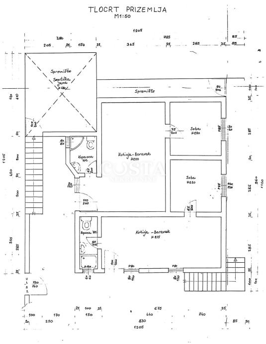
Zum Verkauf steht ein komplett möbliertes, freistehendes Haus mit drei separaten Wohnungen, großzügigen Terrassen und herrlichem Meerblick. Das Anwesen mit einer Wohnfläche von 150 m² befindet sich auf einem 214 m² großen Grundstück und besteht aus drei separaten Wohneinheiten,
Mehr lesen
Objekt ID: 2499426
Preis: € 278.000
Nutzfläche: 0 m2
Gesamtfläche: 214 m2
Ziimmer insgesamt: 7
Schlafzimmer: 7
Badezimmer: 3
Nutzungsart: Wohnen
Provisionspflichtig: ja





























