Objektbeschreibung
ZADAR, PETRČANE – Wohnung in Meeresnähe Z1 S1
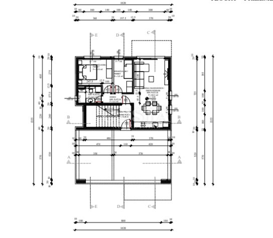
Zum Verkauf steht eine im Bau befindliche Wohnung im ruhigen Dorf Petrčane bei Zadar. Die Wohnung befindet sich im Erdgeschoss eines kleinen Wohnhauses mit insgesamt vier Wohneinheiten. Die Wohnfläche beträgt 47,02 m² und umfasst zwei Schlafzimmer, ein Wohnzimmer, eine Wohnküche, ein Badezimmer,
Mehr lesen
Objekt ID: 2499481
Preis: € 235.900
Nutzfläche: 0 m2
Gesamtfläche: 0 m2
Ziimmer insgesamt: 3
Schlafzimmer: 3
Badezimmer: 1
Nutzungsart: Wohnen
Provisionspflichtig: ja


















