Erweiterte Suche
Suchagent aktivieren
Exklusive Anzeigen

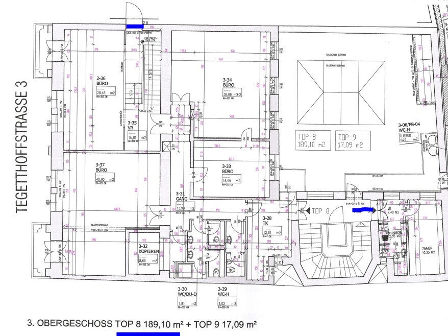
Großzügige Büroflächen insgesamt 828,75 m² in repräsentativem Stilaltbau in Toplage des 1.Bezirks!

Tegetthoffstraße, ,

23 Zimmer
zu Favoriten hinzufügen
teilen
Suchergebnisse

Objektbeschreibung

Großzügige Büroflächen insgesamt 828,75 m² in repräsentativem Stilaltbau in Toplage des 1.Bezirks! (auch teilbar)

Zur langfristigen Vermietung gelangen insgesamt 828 m² Büroflächen in unmittelbarer Nähe des Neuen Markt. Die Büroflächen erstrecken sich über 4 Stockwerke und können auch einzeln angemietet werden. Die Objekte sind derzeit noch adaptierungsbedürftig und werden nach
Mehr lesen

Adresse: Tegetthoffstraße
Ort:
Bezirk:
Bundesland:
PLZ: 1010
Land: Österreich
Objekt ID: 2514330
Nutzfläche: 0 m2
Gesamtfläche: 0 m2
Ziimmer insgesamt: 23
Schlafzimmer: 23
Badezimmer: 0
Miete (netto) €: 16575
USt €: 3725
Nutzungsart: Gewerbe
Provisionspflichtig: ja
Kaution: 3 Bruttomonatsmieten
Personenaufzug
Altbau
Etagenheizung
Gas
Parkett
Klimaanlage

Ticon Immobilienservice
Grazia Belmar

Kontaktaufnahme









    • Preisinformation
      Miete netto16.575,00 €
      Ust.3.725,00 €

    Vergleichen