Objektbeschreibung
STILVOLLER ALTBAUCHARME MIT BALKON – 3-ZIMMER-WOHNUNG IM GENERALSANIERTEN STILHAUS
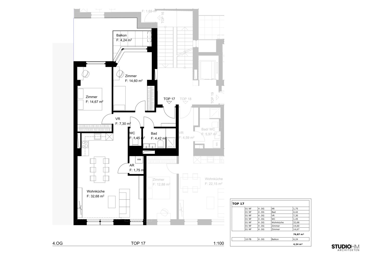
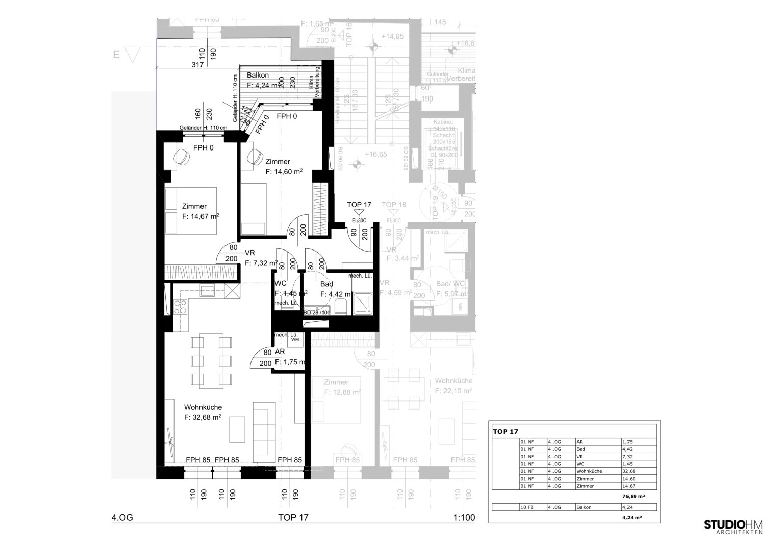
Zum Verkauf gelangt eine derzeit in Sanierung befindliche, optimal aufgeteilte 3-Zimmer-Altbauwohnung mit ca. 77 m² Wohnfläche und Balkon in ausgezeichneter Lage der Brigittenau.
Diese stilvolle Einheit vereint klassischen Wiener Altbaucharme mit moderner Ausstattung und hochwertiger Sanierung – ideal als Eigennutzung oder Anlageobjekt.
————————-
Mehr lesen
Objekt ID: 2531723
Preis: € 519.000
Nutzfläche: 77 m2
Gesamtfläche: 0 m2
Ziimmer insgesamt: 3
Schlafzimmer: 3
Badezimmer: 1
Nutzungsart: Anlage
Provisionspflichtig: ja
Provision: 3% des Kaufpreises zzgl. 20% USt.
HWB: 173,30 kWh/(m²*a)
FGEE: 2.14
Energieausweis Art: Bedarf
Anzahl Balkone: 1
Balkon/Terrassen - Fläche: 4
Etage: 4. Etage
WC: 2
Abstellräume: 1
Balkon
WG-geeignet
Personenaufzug
Gäste-WC
Dusche
Zentralheizung
Abstellraum
Luft-Wärmepumpe
Estrich
Ähnliche Objekte
Idealer Grundriss, gepflegtes Haus, tolle Au...
€ 325.000 pro Monat
3
Schlafzimmer
1
Badezimmer
76 m2
Größe
April 22, 2026
Wohnungspaket mit Garagenplatz in der Speisi...
€ 299.000 pro Monat
2
Schlafzimmer
1
Badezimmer
54 m2
Größe
April 22, 2026


















