Erweiterte Suche
Suchagent aktivieren
Exklusive Anzeigen

Altbau trifft Garten – Sanierungsbedürftige Wohnung im Herzen von Stockerau

€ 285.000,00

,

1206 Zimmer
zu Favoriten hinzufügen
teilen
Suchergebnisse

Objektbeschreibung

Zum Verkauf gelangt eine großzügige Altbauwohnung mit rund 120 m² Wohnfläche und einem knapp 132 m² großen Eigengarten in unmittelbarer Nähe zum Zentrum von Stockerau. Das um 1900 errichtete Haus besteht aus 2 Wohneinheiten und besticht durch seinen historischen Charme. Die Wohnung selbst befindet sich im Erdgeschoß, ist in einem renovierungsbedürftigen Zustand
Mehr lesen

Bezirk:
Bundesland:
PLZ: 2000
Land: Österreich
Objekt ID: 2532701
Preis: € 285.000
Nutzfläche: 120 m2
Gesamtfläche: 0 m2
Ziimmer insgesamt: 6
Schlafzimmer: 6
Badezimmer: 0
Betriebskosten €: 57.7
Nutzungsart: Wohnen
Provisionspflichtig: ja
Provision: 10.260,00 € inkl. 20% USt.
HWB: 180 kWh/(m²*a)
HWB Klasse: E
FGEE: 2.29
Energieausweis Art: Bedarf
Etage: EG
WC: 1
Altbau
Gas
Gartennutzung
Räume veränderbar
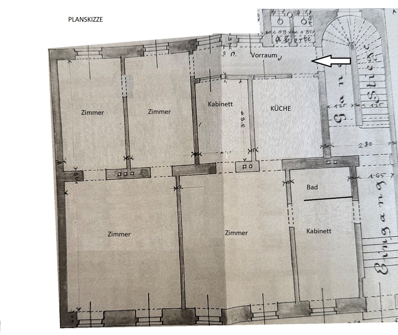
PLANSKIZZE
PLANSKIZZE

Ähnliche Objekte

vergleichen
2oOKJJVkayebOjyohZ21GG

Verkauf mittels BIETERVERFAHREN Leistbare 3 ...

€ 159.900
3
Schlafzimmer
1
Badezimmer
68 m2
Größe
April 16, 2026
vergleichen
mCrBHCqyVu54DE8JGRnT6

Schöne barrierefreie Gartenwohnung mit 30m² ...

€ 280.000
3
Schlafzimmer
1
Badezimmer
74 m2
Größe
April 15, 2026
vergleichen
2X43tHZ9q2EvvUSK5dmKMn

Erstbezug nach Errichtung | 3-Zimmer Dachges...

€ 329.000
3
Schlafzimmer
1
Badezimmer
71 m2
Größe
April 15, 2026

CONFIDO Immobilien GmbH
Laurenz Schnitzer

Kontaktaufnahme









    • Preisinformation
      Betriebskosten57,70 €
      Objektpreis285.000,00 €

    Vergleichen