Objektbeschreibung
ISTRIEN – GRAČIŠĆE, MODERNE VILLA IN DER NATUR, POOL
————————————————————
Im Herzen der malerischen Zentralistriens, zwischen Gračišće, Lindar und Žminj, befindet sich diese einzigartige Villa, die moderne Architektur auf perfekte Weise mit der Wärme und Authentizität mediterraner Tradition verbindet. Umgeben von sanften Hügeln und einem autochthonen Eichenwald bietet die
Mehr lesen
Objekt ID: 2551681
Preis: € 850.000
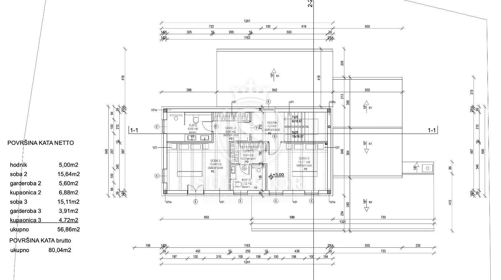
Nutzfläche: 0 m2
Gesamtfläche: 850 m2
Ziimmer insgesamt: 5
Schlafzimmer: 5
Badezimmer: 3
Nutzungsart: Wohnen
Provisionspflichtig: ja
WC: 1













