Objektbeschreibung
Dieses charmante Einfamilienhaus bietet die perfekte Kombination aus Wohnkomfort, hochwertiger Ausstattung und ruhiger Lage im Grünen – ideal für Familien, die ihren Kindern ein behütetes Aufwachsen in naturnaher Umgebung ermöglichen möchten.
Wohnen, wo Kinder noch draußen spielen
Inmitten einer ruhigen, grünen Umgebung gelegen, genießen Sie hier absolute Entspannung und
Mehr lesen
Objekt ID: 2555460
Preis: € 579.000
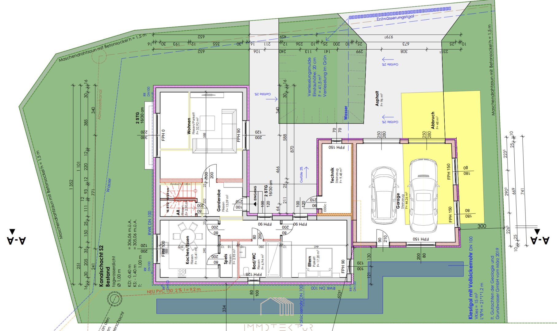
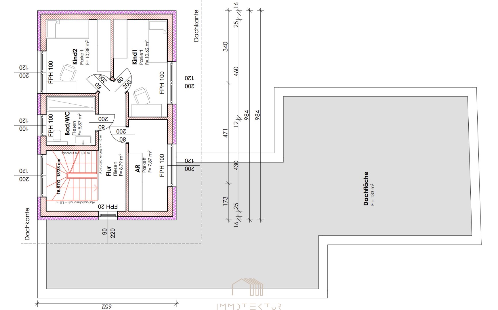
Nutzfläche: 135 m2
Gesamtfläche: 144 m2
Ziimmer insgesamt: 4
Schlafzimmer: 4
Badezimmer: 2
Nutzungsart: Wohnen
Provisionspflichtig: ja
Provision: 3% des Kaufpreises zzgl. 20% USt.
HWB: 58 kWh/(m²*a)
HWB Klasse: C
FGEE: 0.83
Energieausweis Art: Bedarf
Beziehbar: nach Vereinbarung
WC: 2
Abstellräume: 1
Neubau
Einbauküche
Parkett
Bad mit Fenster
Fußbodenheizung
Abstellraum
Garage
Luft-Wärmepumpe
Massiv
Massivbauweise
schlüsselfertig mit Bodenplatte
Gartennutzung
Pultdach




