Objektbeschreibung
BAD: HOFGASTEIN
(AUF-) LEBEN INMITTEN DER ALPEN
PROVISIONSFREI für den Käufer
_
WOHNEN, WIE DAS LEBEN SPIELT.
Dieses Wohnprojekt verbindet leistbaren Wohnraum mit hoher Lebensqualität – und erfüllt dabei unterschiedlichste Wohnbedürfnisse auf stilvolle Weise für jede Lebensphase.
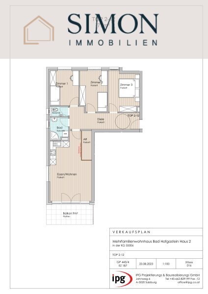
Insgesamt entstehen 24 zeitgemäß geplante Zwei-, Drei- und Vierzimmerwohnungen mit Wohnflächen von
Mehr lesen
Adresse: Gadaunererstraße
Ort: Bad Hofgastein
Bezirk: 5630
Bundesland: Salzburg
PLZ: 5630
Land: Österreich
Objekt ID: 2560643
Preis: € 512.000
Nutzfläche: 0 m2
Gesamtfläche: 79 m2
Ziimmer insgesamt: 4
Schlafzimmer: 4
Badezimmer: 1
Nutzungsart: Wohnen
HWB: 30 kWh/(m²*a)
HWB Klasse: B
FGEE: 0.52
E-Ausweis Gültig Bis:: 07.03.2033
Energieausweis Art: Bedarf
Anzahl Balkone: 1
Balkon/Terrassen - Fläche: 9
Beziehbar: 2026
Etage: 2. Etage / 2. Etage
WC: 1
Abstellräume: 1
Balkon
Neubau
Personenaufzug
Parkett
Bad mit Fenster
Fahrradraum
Abstellraum
Freiplatz
Massiv
Massivbauweise
Fernwärme
seniorengerecht
Walmdach
Neubaustandard












