Objektbeschreibung
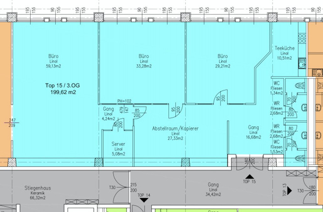
Zur Vermietung steht ein modernes Büro mit ca. 200 m² im 3. Obergeschoss. Die Fläche bietet helle Räume, eine klare Struktur und lässt sich flexibel an die Bedürfnisse verschiedener Unternehmen anpassen.
Ausreichend Parkplätze sorgen für eine komfortable Erreichbarkeit für Mitarbeiter und Kunden.
Die Lage überzeugt durch die Nähe zur A2 (Wr. Neudorf, Mödling) sowie durch die gute
Mehr lesen
Objekt ID: 2562068
Nutzfläche: 0 m2
Gesamtfläche: 200 m2
Ziimmer insgesamt: 4
Schlafzimmer: 4
Badezimmer: 0
Miete/m2 €: 10.5
Miete (netto) €: 2096.01
USt €: 499.05
Nutzungsart: Gewerbe
Provisionspflichtig: ja
Kaution: 3 Bruttomonatsmieten
HWB: 106,60 kWh/(m²*a)
Energieausweis Art: Bedarf
Beziehbar: sofort
Etage: 3. Etage
WC: 2
Abstellräume: 1
barrierefrei









