Objektbeschreibung
Willkommen in Ihrem neuen Projekt! Diese charmante Altbauwohnung bietet Ihnen die perfekte Gelegenheit, Ihre kreativen Ideen und Wohnträume zu verwirklichen.
Die Wohnung befindet sich in einem sanierten Zustand und kann daher rasch Bezogen werden.
Das Haus selbst macht einen gepflegten Eindruck. Die historische Fassade, das gepflegte Treppenhaus und die soliden
Mehr lesen
Objekt ID: 2566160
Preis: € 399.000
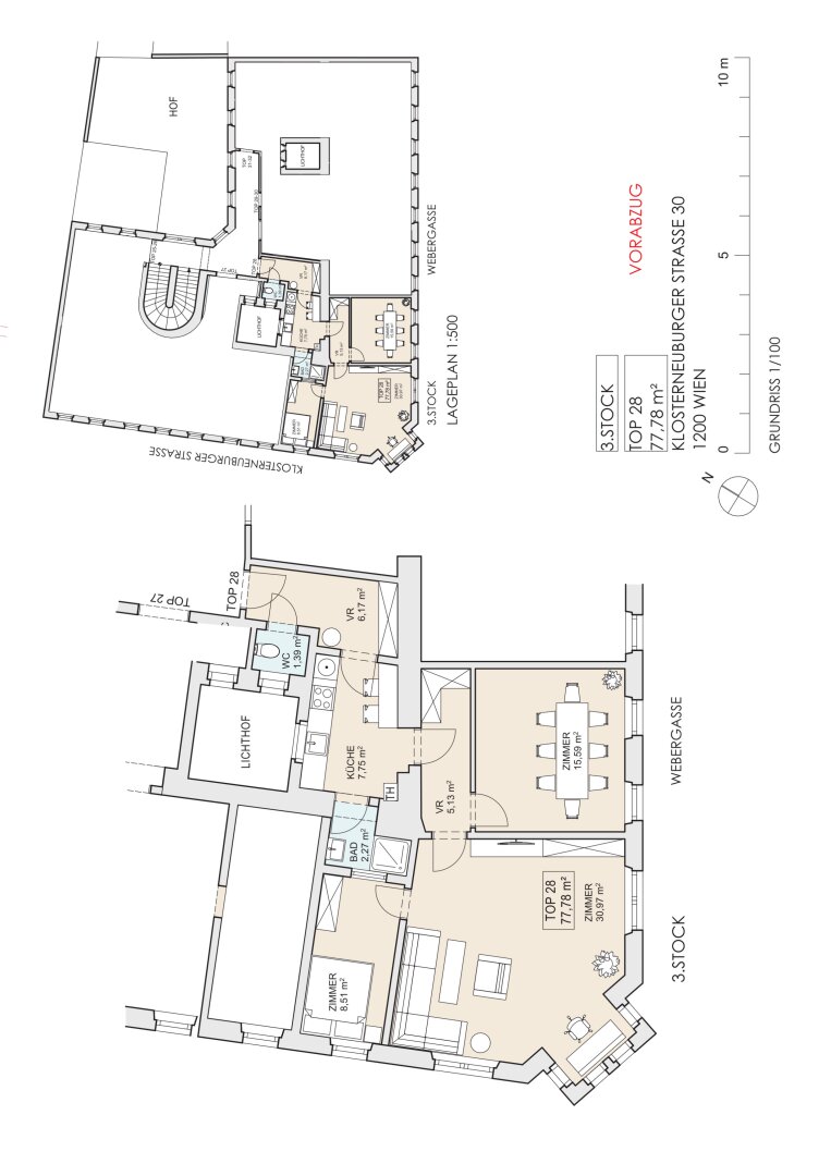
Nutzfläche: 78 m2
Gesamtfläche: 78 m2
Ziimmer insgesamt: 3
Schlafzimmer: 3
Badezimmer: 1
Nutzungsart: Wohnen
Provisionspflichtig: ja
Provision: 3% des Kaufpreises zzgl. 20% USt.
HWB: 117 kWh/(m²*a)
HWB Klasse: D
FGEE: 3.66
Energieausweis Art: Bedarf
Beziehbar: ab sofort
Etage: 3. Etage / 3. Stock ohne Lift
WC: 1
barrierefrei
Altbau
Dusche
Massiv
Massivbauweise
Ähnliche Objekte
NEU | Exklusive Aktion – Küche inklusive | J...
€ 379.000
2
Schlafzimmer
1
Badezimmer
48 m2
Größe
April 27, 2026













