Erweiterte Suche
Andere Eigenschaften
Suchagent aktivieren
Exklusive Anzeigen

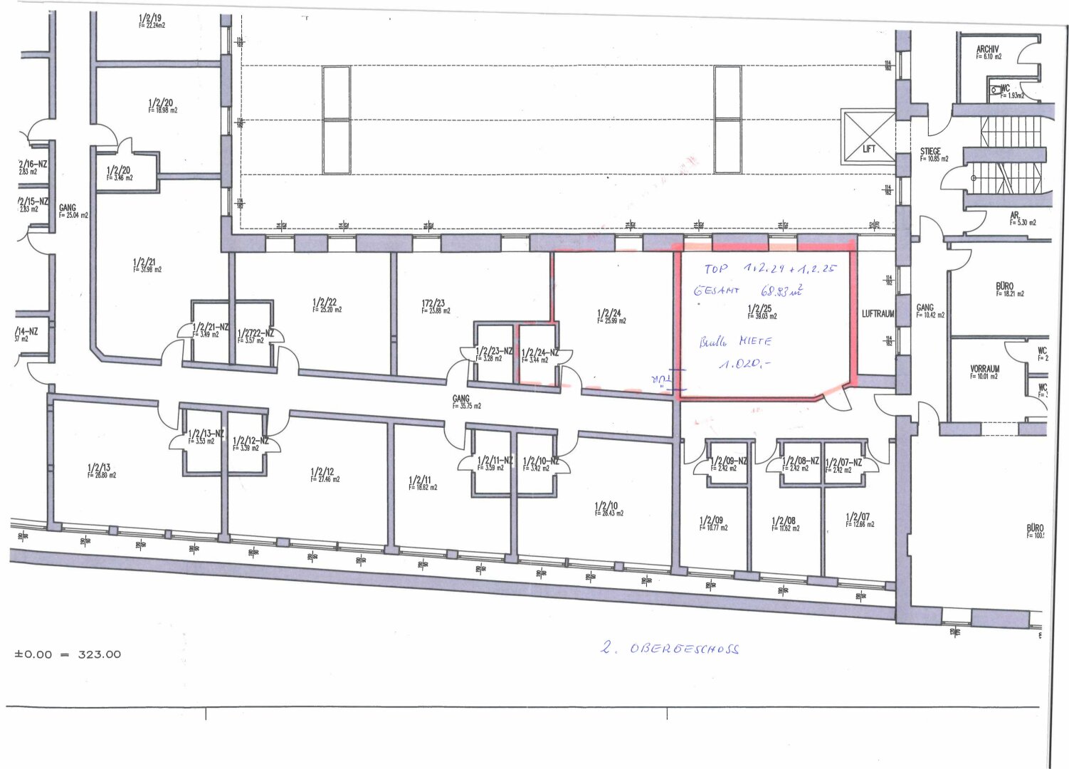
Modernes 2-Zimmerbüro in der Lederfabrik

Leonfeldner Straße 328, ,

2 Zimmer
zu Favoriten hinzufügen
teilen
Suchergebnisse

Objektbeschreibung

Diese charmante Büro- oder Praxisfläche in der 2. Etage eines historischen Fabrikgebäudes.

Das Büro überzeugt durch eine geräumige Zimmeraufteilung und ein freundliches Ambiente, also ideale Voraussetzungen um Kunden zu empfangen.

Die Heiz-und Stromkosten werden vom Vermieter bzw. der Hausverwaltung vorgeschrieben und abgerechnet. Es sind ausreichend Parkplätze für Sie und Ihre
Mehr lesen

Adresse: Leonfeldner Straße 328
Ort:
Bezirk:
Bundesland:
PLZ: 4040
Land: Österreich
Objekt ID: 2570875
Nutzfläche: 0 m2
Gesamtfläche: 69 m2
Ziimmer insgesamt: 2
Schlafzimmer: 2
Badezimmer: 0
Miete (netto) €: 850
Betriebskosten €: 213.68
USt €: 170
Nutzungsart: Gewerbe
Provisionspflichtig: ja
Kaution: 3 Bruttomonatsmieten
Etage: 2. Etage

AREV Immobilien GmbH
Silvia Loizenbauer

Kontaktaufnahme









    • Preisinformation
      Miete netto850,00 €
      Betriebskosten213,68 €
      Ust.170,00 €

    Vergleichen