Objektbeschreibung
UNIKAT AN DER ALTEN DONAU!
_*Bitte beachten Sie, dass es sich hierbei um ein Projekt auf Baurechtsgrund (Bis zum Jahr 2115) handelt*_
_Im Kaufpreis ist bereits ein Stellplatz enthalten_
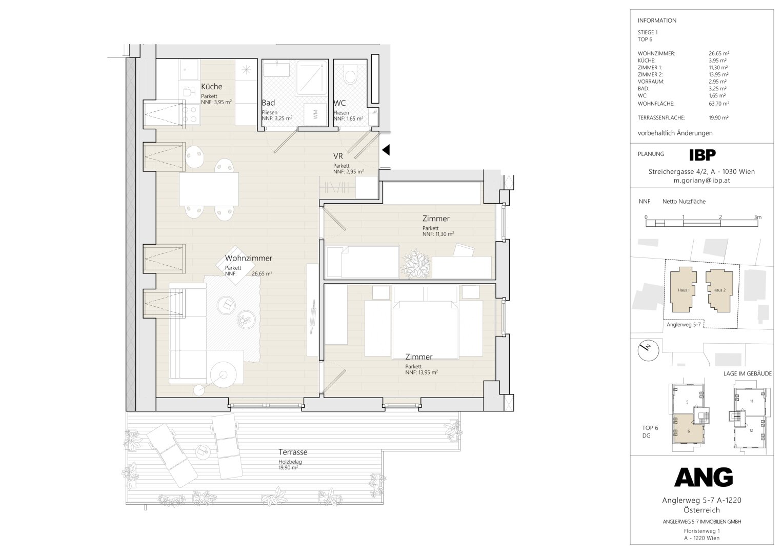
Zum Verkauf gelangt ein moderne und helle 3-Zimmer Erstbezugs-Wohnung am Anglerweg. Die Wohnung befindet sich im Dachgeschoss und ist süd-west-seitig ausgerichtet.
Mehr lesen
Objekt ID: 2573567
Preis: € 549.000
Nutzfläche: 73 m2
Gesamtfläche: 73 m2
Ziimmer insgesamt: 3
Schlafzimmer: 3
Badezimmer: 1
Nutzungsart: Wohnen
Provisionspflichtig: ja
Provision: 3% des Kaufpreises zzgl. 20% USt.
HWB: 45,51 kWh/(m²*a)
HWB Klasse: B
FGEE: 0.85
Energieausweis Art: Bedarf
Balkon/Terrassen - Fläche: 19
Beziehbar: ab sofort
Etage: 1. DG / Dachgeschoss
WC: 1
Neubau
Personenaufzug
Gas
Parkett
Dusche
Fußbodenheizung
Kabel/Sat-TV
Fahrradraum
offene Küche
Abstellraum
Offene Küche
Freiplatz
Massiv
Massivbauweise
Neubaustandard
Ähnliche Objekte
Helle, großzügige Maisonette-Wohnung mit 2 B...
€ 799.000
4
Schlafzimmer
2
Badezimmer
123 m2
Größe
Januar 28, 2026
Natur trifft Komfort – 2-Zimmer mit gr...
€ 574.200
2
Schlafzimmer
1
Badezimmer
57 m2
Größe
Januar 28, 2026






