Erweiterte Suche
Andere Eigenschaften
Suchagent aktivieren
Exklusive Anzeigen

ZADAR, NIN – Doppelhaushälfte mit Pool, 50 m vom Meer entfernt

€ 1.100.000,00

,

8 Zimmer
zu Favoriten hinzufügen
teilen
Suchergebnisse

Objektbeschreibung

ZADAR, NIN – Doppelhaushälfte mit Pool, 50 m vom Meer entfernt

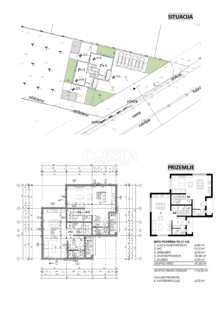
In Nin bei Zadar steht eine im Bau befindliche Doppelhaushälfte zum Verkauf. Das Gebäude mit einer Wohnfläche von 196,6 m² befindet sich auf einem 508 m² großen Grundstück und besteht aus zwei separaten Wohneinheiten mit jeweils eigenem Pool. Es
Mehr lesen

Ort:
Bezirk:
PLZ: 23232
Land: Croatia
Objekt ID: 2595422
Preis: € 1.100.000
Nutzfläche: 0 m2
Gesamtfläche: 508 m2
Ziimmer insgesamt: 8
Schlafzimmer: 8
Badezimmer: 4
Nutzungsart: Wohnen
Provisionspflichtig: ja
WC: 2

Ähnliche Objekte

vergleichen
1743154016 nin 1

Haus Zaton, Nin, 360m2

€ 749.000
11
Schlafzimmer
4
Badezimmer
Januar 27, 2026
vergleichen
1758293588 prodaja kuca nin okolica zadra 5

Haus Nin, 107,90m2

€ 399.000
4
Schlafzimmer
Januar 27, 2026
vergleichen
1762963846 img 7045

ZADAR, ZATON – Luxusvilla mit Pool

€ 1.200.000
5
Schlafzimmer
4
Badezimmer
Januar 27, 2026


Sara Večeralo

Kontaktaufnahme









    • Preisinformation
      Objektpreis1.100.000,00 €

    Vergleichen