Objektbeschreibung
ZADAR, NIN – Wohnung mit Pool in einer Maisonette-Villa, 50 m vom Meer entfernt
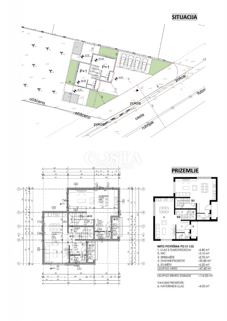
Eine im Bau befindliche Maisonette-Villa in Nin bei Zadar steht zum Verkauf. Die Wohnung mit einer Wohnfläche von 93,30 m² erstreckt sich über Erdgeschoss, Obergeschoss und Dachterrasse. Im Erdgeschoss befinden sich Wohnzimmer, Küche mit Essbereich, Abstellraum
Mehr lesen
Objekt ID: 2595446
Preis: € 550.000
Nutzfläche: 0 m2
Gesamtfläche: 0 m2
Ziimmer insgesamt: 4
Schlafzimmer: 4
Badezimmer: 2
Nutzungsart: Wohnen
Provisionspflichtig: ja
WC: 1













