Objektbeschreibung
Poreč (Umgebung) – Moderne Erdgeschosswohnung in Toplage mit Meerblick! Neubau!
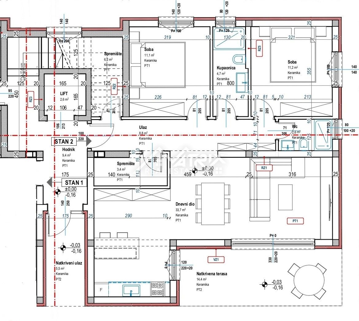
Willkommen in dieser schönen 83 m² großen Wohnung in bester Lage, nur wenige Gehminuten von allen wichtigen Einrichtungen und 8 km vom Meer und Stadtzentrum entfernt. Die Wohnung befindet sich in einem Gebäude mit nur 6 Wohneinheiten und bietet die
Mehr lesen
Objekt ID: 2597636
Preis: € 330.125
Nutzfläche: 0 m2
Gesamtfläche: 0 m2
Ziimmer insgesamt: 3
Schlafzimmer: 3
Badezimmer: 0
Nutzungsart: Wohnen
Provisionspflichtig: ja







