Objektbeschreibung
Zum Verkauf steht eine Wohnung im Bau, gelegen im ersten Stock eines modernen Wohnkomplexes im Stadtteil Valdebek – einer der gefragtesten und angenehmsten Gegenden von Pula. Diese Immobilie vereint zeitgemäße Architektur mit einem funktionalen Grundriss und eignet sich ideal für das Familienleben oder als langfristige Investition zur Vermietung.
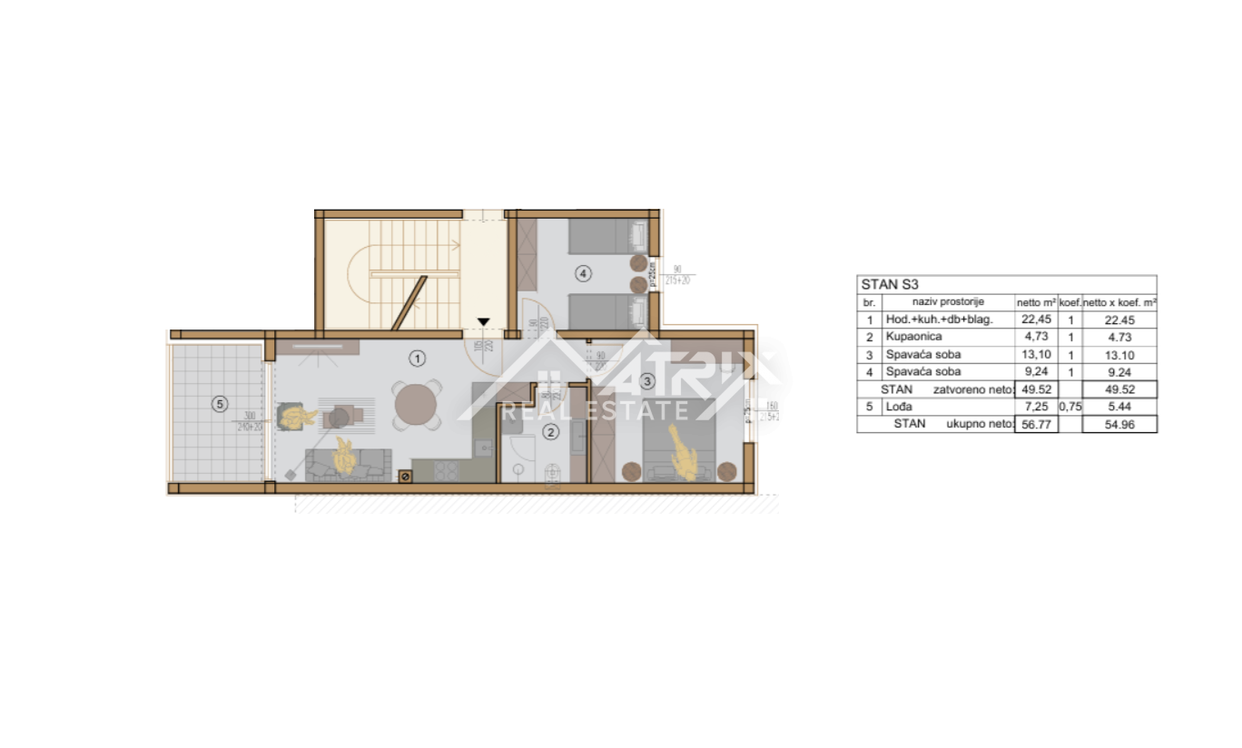
Die Wohnung
Mehr lesen
Objekt ID: 2597693
Preis: € 195.000
Nutzfläche: 0 m2
Gesamtfläche: 0 m2
Ziimmer insgesamt: 3
Schlafzimmer: 3
Badezimmer: 1
Nutzungsart: Wohnen
Provisionspflichtig: ja












