Objektbeschreibung
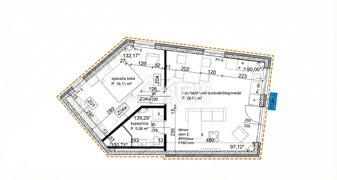
In der ruhigen Ortschaft in der Nähe von Poreč, befindet sich diese funktionale Erdgeschosswohnung – perfekt für das Familienleben, einen entspannten Urlaub oder als rentable Investition. Die Wohnung 2 liegt im Erdgeschoss eines Neubaus mit mehreren Wohneinheiten und bietet ein hohes Maß an Privatsphäre, ergänzt durch eine großzügige Terrasse und
Mehr lesen
Objekt ID: 2597790
Preis: € 183.134
Nutzfläche: 0 m2
Gesamtfläche: 0 m2
Ziimmer insgesamt: 2
Schlafzimmer: 2
Badezimmer: 1
Nutzungsart: Wohnen
Provisionspflichtig: ja
















