Objektbeschreibung
In der Nähe des Schönbrunner Parks befindet sich diese sehr schöne, sonnige und ruhige Wohnung.
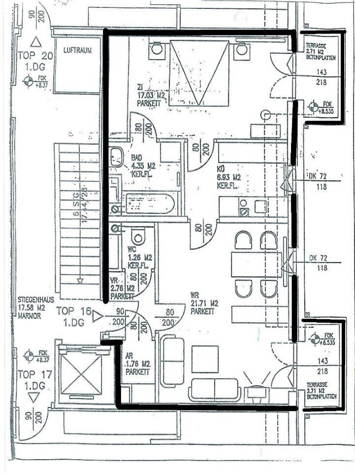
Im 3. Liftstock gelegen, sind auf einer Wohnfläche von ca. 60m² ein Vorraum, ein Wohnzimmer und ein Schlafzimmer gartenseitig, eine Küche und ein Bad mit Wanne & Waschtisch, ein Abstellraum und ein separates WC vorhanden.
Mehr lesen
Objekt ID: 2601164
Preis: € 1.270.28
Nutzfläche: 60 m2
Gesamtfläche: 67 m2
Ziimmer insgesamt: 2
Schlafzimmer: 2
Badezimmer: 1
Miete (netto) €: 1000
USt €: 115.48
Gesamtbelastung €: 1270.28
Nutzungsart: Wohnen
Provisionspflichtig: nein
Kaution: 4.000,00 €
HWB: 54,42 kWh/(m²*a)
HWB Klasse: C
FGEE: 1
E-Ausweis Gültig Bis:: 27.12.2029
Energieausweis Art: Bedarf
Anzahl Balkone: 2
Balkon/Terrassen - Fläche: 7
Beziehbar: sofort
Etage: 3. Etage
WC: 1
Abstellräume: 1
Balkon
barrierefrei
Neubau
Einbauküche
Personenaufzug
Parkett
Badewanne
Kabel/Sat-TV
Fahrradraum
Abstellraum
Rollläden
rollstuhlgerecht
Massiv
Massivbauweise
Fernheizung
Fernwärme
Gartennutzung
Tiefgarage
Ähnliche Objekte
Exklusive Neubauwohnung mit großzügigem Balk...
€ 949
2
Schlafzimmer
1
Badezimmer
47 m2
Größe
Januar 28, 2026
Elegante, moderne 3-Zimmer-Wohnung in 1220 W...
€ 1.974.16
3
Schlafzimmer
1
Badezimmer
96 m2
Größe
Januar 28, 2026






