Erweiterte Suche
Suchagent aktivieren
Exklusive Anzeigen

Beim Lainzer Platz – Exklusive Ausstattung – Modernste Technik – Perfekte Infrastruktur!

,

723 Zimmer
zu Favoriten hinzufügen
teilen
Suchergebnisse

Objektbeschreibung

Eine elegante Wohnanlage, mit nur 7 Wohneinheiten, in Grünlage beim Lainzer Platz´l, bietet Wohn-/Büroqualität auf höchstem Niveau!

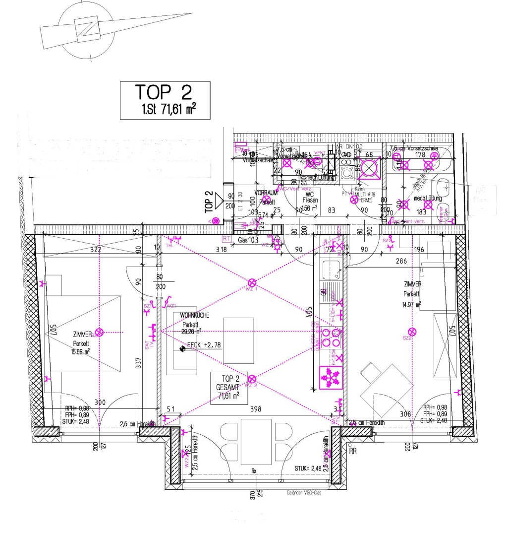
Die perfekt ausgestatteten Räumlichkeiten, mit einer Nutzfläche von ca. 72m² sind bestens für Büro oder Praxis geeignet! Der perfekte Grundriss, die Ausstattung, die Annehmlichkeiten einer Garage, eines großzügigen Kellerabteiles, Fahrrad/Kinderwagenabstellraumes und vielem mehr
Mehr lesen

Ort:
Bezirk:
Bundesland:
PLZ: 1130
Land: Österreich
Objekt ID: 2601222
Nutzfläche: 72 m2
Gesamtfläche: 72 m2
Ziimmer insgesamt: 3
Schlafzimmer: 3
Badezimmer: 1
Miete (netto) €: 1038.35
Betriebskosten €: 161.84
Nutzungsart: Gewerbe
Provisionspflichtig: ja
Kaution: 6.481,03 €
HWB: 38,20 kWh/(m²*a)
HWB Klasse: B
FGEE: 0.7
E-Ausweis Gültig Bis:: 27.08.2026
Energieausweis Art: Bedarf
Beziehbar: sofort
Etage: 1. Etage
WC: 1
Abstellräume: 1
barrierefrei
Neubau
Personenaufzug
Gäste-WC
Gas
Parkett
Badewanne
Fußbodenheizung
Kabel/Sat-TV
Fahrradraum
offene Küche
Abstellraum
Offene Küche
Garage
Massiv
Massivbauweise
seniorengerecht
Grundriss
Grundriss

Bieber Immobilien GmbH
Elisabeth Bieber

Kontaktaufnahme









    • Preisinformation
      Miete netto1.038,35 €
      Betriebskosten161,84 €

    Vergleichen