Objektbeschreibung
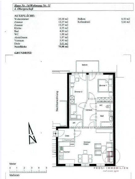
Ab sofort steht eine helle 3-Zimmer-Mietwohnung in Graz in der Zweiglgasse 14 im 4. OG unmöbliert zur Verfügung.
Die Wohnung überzeugt durch ihre praktische Raumaufteilung, Balkon, Kellerabteil und Tiefgaragenplatz
*
1 Wohn-Ess-Küchenbereich (kann möbliert werden)
*
2 Schlafzimmer
*
Badezimmer
*
Separates WC
Objekt ID: 2614405
Preis: € 918
Nutzfläche: 75 m2
Gesamtfläche: 0 m2
Ziimmer insgesamt: 3
Schlafzimmer: 3
Badezimmer: 1
Miete (netto) €: 918
Gesamtbelastung €: 918
Nutzungsart: Wohnen
Provisionspflichtig: nein
Kaution: 3 Bruttomonatsmieten
HWB: 45,09 kWh/(m²*a)
Energieausweis Art: Bedarf
Anzahl Balkone: 1
Beziehbar: ab sofort
Max. Mietdauer: unbefristet
WC: 1
Abstellräume: 1
Balkon
Personenaufzug
Badewanne
Fernheizung
Tiefgarage
Ähnliche Objekte
*WG-taugliche 3-Zimmer-Altbauwohnung mit möb...
€ 650
3
Schlafzimmer
1
Badezimmer
95 m2
Größe
März 27, 2026
Gemütliche 1-Zimmer-Wohnung mit Balkon in Gr...
€ 402.23
1
Schlafzimmer
1
Badezimmer
32 m2
Größe
März 27, 2026









