Objektbeschreibung
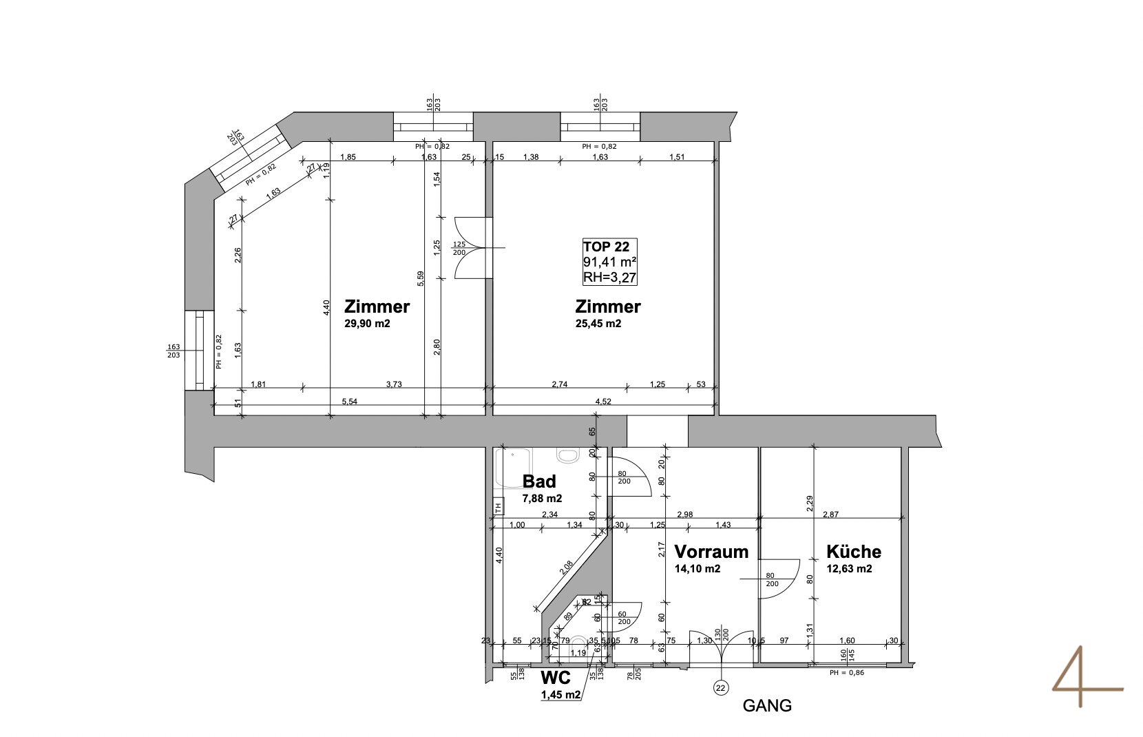
Diese stilvoll modernisierte Altbauwohnung mit rund 91 m² Wohnfläche verbindet klassischen Wiener Charme mit zeitgemäßem Wohnkomfort. Originaler Fischgrätparkett, elegante Flügeltüren und gut erhaltene Kastenfensterverleihen ihr eine besondere, historische Note. Die helle Eckwohnung im gepflegten Gründerzeithaus überzeugt durch ihre sonnige West-Ausrichtung und eine harmonische Raumwirkung. Eine neu installierte moderne Heizlösung sorgt für angenehmes Wohnklima zu jeder Jahreszeit. Die U3-Station Kardinal-Nagl-Platz sowie Einkaufsmöglichkeiten und Lokale liegen
Mehr lesen










